介绍 - FOSTEX FX120 MLTL音箱项目
我的第一个引进全频扬声器,大约4年前在德国的DIY音响杂志的特点是传输线音箱的项目使用的是威发10 BGS8分之119的驱动程序。我决定给他们一个尝试,很惊讶的音质!当然,他们并没有发挥更大的双向扬声器,我以前建造的一样大声,但别的东西是迷人的。全频驱动程序似乎有更多的连贯性,更多的生命和播放音乐,他们的声音更直接。不过,也有妥协的全频驱动程序,很少在低端驱动程序有缺点和更大的顶端。
全频驱动程序的更多信息,看,我发现Mathcad工作表由MJ国王和决定尝试一下我自己设计的扬声器。我第一次尝试是一个扬声器,使用FOSTEX FE167E,但我从来没有适当的橱柜他们,因为我的妻子说:“没办法,他们是太大了”。寻找一个更小的驱动程序FOSTEX FX120,12厘米的全频单元,吸引了我的眼球。没有该驱动程序提供了大量信息,但人谁使用的反馈是积极的。在的FOSTEX数据表,他们表现出平坦的频率响应,而巨大的高峰和下降。
外壳设计 - FOSTEX FX120 T-线项目
FX120将需要一点点帮助的底端。我们的目标是让他们下降到50赫兹。Mathcad工作表中,我设计了一个质量满载 - 圆锥四分之一波长管(ML-TQWT)。后来,我接触的MJ王,问他去看看我已经完成了在模拟。随着他的反馈:“我认为你有一个设计”(我要感谢金先生对他的帮助和建议),我做了一些测试,外壳硬纸板。图1示出了在图2中所示的外壳的FX120计算出的频率响应。

图1:计算频率响应 - FOSTEX FX120 ML-TQWT(T线)

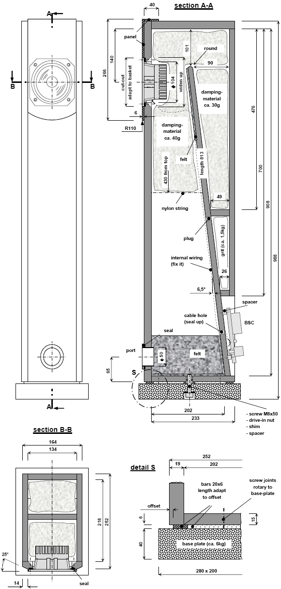
图2:圈地计划 - FOSTEX FX120 ML-TQWT(输电线路)
起初他们都有点苛刻,但约100小时后,他们理顺。我开始调整他们的耳朵,直到我满意的扬声器传出来的音乐。我打与端口的长度和测试了几种为挡板步骤校正(BSC)的电路的电感器和电阻器的值。BSC是必要的,否则声音是不均衡的。

图3:FOSTEX FX120的ML-TQWT挡板步补偿电路
FOSTEX FX120的ML-TQWT外壳,切割和建筑图则
-
FOSTEX FX120的ML-TQWT大厦的计划 - (PDF 70KB)
-
FOSTEX FX120的ML-TQWT外壳的计划 - (PNG 151KB)
-
FOSTEX FX120的ML-TQWT切割计划 - (PNG 191KB)
围护施工 - FOSTEX FX120 MLTL
外壳分别用15 mm桦木复用,前挡板和顶端为19 mm榉木,和内板16毫米MDF。当然,你可以使用不同厚度的材料,但一定要调整尺寸的计划。

照片1:FOSTEX的FX120的ML-TQWT机箱建设

照片2:FOSTEX FX120挡板倒角
在我关上盒子的正面和顶部有四件事情做。首先,我附上尼龙绳,以保持双方之间的阻尼材料,从下跌的底部。另一件事是把之间的内部和背面板的阻尼,因为你不能做到这一点通过驱动程序,切出的柜被关闭后。的布线必须到位,并在后面的孔,用于连接导线与BSC具有以被密封。另外,我把有些人认为背后的驱动程序,并在该行的末尾,以避免反射。我不知道是否有帮助,我想这样做的,它不能是坏的。

照片3:FOSTEX FX120的ML-TQWT挡板步补偿电路
机柜中的空腔与砾石填充外壳添加一些质量和防止共振。请务必仔细封箱。

照片4:FOSTEX FX120的ML-TQWT音箱箱的内部
底板中,我发现了一个花岗岩板材在一个石匠的商店,他对我来说,价格适中。两个小组的正面和顶部的铝阳极氧化黑色,上面覆盖着闪亮的透明涂层。机体光洁度包括60的打磨,然后120,然后180砂纸和四个处理“硬蜡油”触发的木材的颜色和表面保护。

照片5:FOSTEX FX120传输线音箱
结论 - FX120的ML-TQWT音箱FOSTEX项目。
(责任编辑:admin) |