|
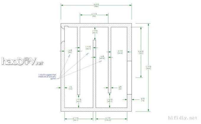
现在就又想上点大点的项目了。 上什么项目呢?我想对我来说,还是全频喇叭加迷宫音箱比较靠谱。关于全频,喜爱者乐此不疲,厌恶者避之不及。作为普通烧友,烧全频是有道理的,一是全频易于上手,二是真正好的全频与胆机相配,确实是欣赏人声与轻音乐的独门利器。随着年龄的增长,高音的听觉能力必然下降,高频对我们将完全失去意义。对低频的追求不会随年龄的增长而减弱,所以,作为对全频单元低频重放能力的补充,迷宫箱的DIY成了我们必须面对的东西。 几年前,我DIY了一个6P3P的小胆机,又直接在网上买迷宫箱体DIY了一个4寸优雅全频单元的音箱,一直用它享受着音乐,虽其乐融融,但总是感到低频的不足。按我的观点,缺少低频的音乐飘飘然就像丢失了灵魂一样,总是让人听得不踏实不止瘾。上论坛后,看烧友介绍声韵的全频单元不错,说低频响应好,于是毫不犹豫上淘宝买来一对换上,低频果然直上一个台阶,播放音乐时其低频丰满澎湃,竟然有点我客厅中家庭影院低音炮的感觉(客厅音响是先锋AV功放加雅马哈十寸低音炮)。看来玩全频是有轻重缓急之分的,第一重要的是单元素质,第二才是箱体设计,当然还有非常重要的第三方面,那就是一款好胆机——不过这已经超出本版块的讨论范围了。要上全频大项目,至少是8寸单元才行,我已经看上了声韵的8寸单元,初步计划买便宜一些的粉磁板,DIY迷宫箱体后,如果效果不错,再升级成钴磁板也不迟。 前面都是废话了,现在转入正题:设计迷宫音箱的关键是算好声道长度,计算的理论依据是什么呢? 本人不才,在网上看了一些稀稀落落的资料,没有发现真正介绍得很清楚的东西。根据我的再加工再理解,我想在此整理我的一些看法,希望资深的老烧友们能站出来给我纠偏和指导。再次声明,本人菜鸟一个,有些理解有可能南辕北辙,那就请各位大侠笑过之后批评指正了。本人一定虚心接纳,也好同其他菜鸟们共同提高。 迷宫箱声道长度设计原理: 首先,迷宫音箱本质上叫传输线音箱。其声学原理是在喇叭单元的振膜后面加一段声道传输线路,由于空间的限制,把这个传输声道折叠起来,就得到了所谓的迷宫音箱。这个声道的截面积必须不小于喇叭振膜的有效振动面积。根据我所看到的资料,有的声道从头到尾是等截面积的,有的是从小到大的号角式,也有从大到小的收尾式,甚至还有大小交替变化式,但不管哪种形式,声道的最小截面积都不能小于喇叭振膜的有效振动面积。我想这几种形式在声道长度相等的前提下在低频下潜与量感的提升方面应该不会有太大的区别,区别只在于低频的放送面积不同罢了,最基本的号角式使低音获得了更大的放送空间,而其他几种会使低音产生更好的结像或定位。这点就像用喇叭状的话筒喊话会使更多的人听见,而用直筒式话筒喊话会使正对直筒的人更容易听见。另外,等截面积型或近似等截面积型的小号角式会在箱体内获得更大的长度,从而能获得更大的下潜能力。这是我们下面要讨论的,声道长度如何来决定下潜能力。
迷宫音箱的本质结构——后加载声道传输线路
声道等截面积型
等截面积型
声道截面积由小到大——号角型
|





























