最好的电子音响科技diy制作网站

haoDIY_音响电子电脑科技DIY小制作发明

当前位置: 主页 > 音响DIY > 音箱DIY > 全频音箱 >

SEAS FA22RCZ H1597-08 西雅士8寸全频喇叭diy制作音箱附图纸

时间:2012-12-01 21:32来源:bbs.hifidiy.net 作者:admin 点击:
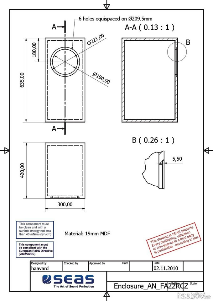
音箱制作图纸 下载 (34.36 KB) 2012-11-15 19:29 下载 (29.4 KB) 2012-11-15 19:29 下载 (19.53 KB) 2012-11-15 19:29 下载 (51.08 KB) 2012-11-15 19:29 下载 (48.57 KB) 2012-11-15 19:29 下载 (42.68 KB) 2012-11-15 19:29 下载 (118.7 KB) 2011-2-8 13:3
一款使用SEAS经典全频单元FA22RCZ的高级音箱
                                                             SEAS研发实验室设计


FA22RCZ是一个高效率全频单元,它可以提供以惊人的准确且流畅的声音播放效果,而且价格非常合理。只需搭配中低功率的优质功放,使用性能良好的信号源,它就可以与那些难以企及的高价单元相媲美。

SEAS FA22RCZ H1597-08 西雅士8寸全频喇叭diy制作音箱附图纸

箱体推荐
       推荐使用净容积约60升的密闭式箱体。如果没有使用吸音阻尼材料,最后箱体谐振频率将是54Hz,而箱体的Q值将是0.63。在箱体内加入适量的吸音材料来阻尼箱体内的驻波,可以得到一个低频端缓缓滚降的平滑响应。同时箱体谐振频率和Q值也将有小幅的下降。吸音阻尼材料中,玻璃纤维隔热材料比较适合使用,但是要小心处理,以免对健康造成不良影响。因为玻璃纤维会刺激皮肤,而且细屑通过呼吸吸入,对健康可能有不良影响。涤纶纤维棉是一种很好的替代,使用时也不会让人有不舒服的感觉。

       或者采用70升的低频反射式箱体,也就是通常说的倒相箱。箱体内使用少量的吸音棉阻尼驻波。通过选择合适的倒相管直径和长度,将倒相箱箱体的谐振频率调谐到33Hz,可以得到一种理想的倒相箱响应类型,即QB3(3阶准巴特沃斯)响应。

      背负号角式箱体经常被用于这一类全频单元。用户们可以大胆尝试使用这种结构,有什么经验大家可以交流分享。如果给锥盆附加质量来改变低频响应,那么应该注意,须避免过量的机械负载而造成锥盆冲程过大。

      建议使用厚度足够的优质材料来制作箱体。箱壁的边缘应当精确裁切,使它们可以准确地拼装起来。建议使用内部支撑来阻尼箱壁的结构性谐振。

      应当全部使用优质的线材和接线端子。所用线材的串联电阻只要足够低于单元的直流电阻,就不必使用特别粗的连接线。建议将箱体内的接线都采用焊接,以免使用时出现故障。

听音环境及摆位

    应当使用稳固的脚架,使单元的高度与你的耳朵大致平齐。即使你的听音环境很好,也足够大,找出音箱可以表现得最好的位置也是很重要的事。将箱体放在靠近墙壁或者角落的位置可以得到更强大的低频,但也可能使中低频段的响应变得不正常。建议做一些试验来找到声音良好平衡并且没有声染色的摆位。

      按照传统的双声道立体声摆位法,把单元的中心轴朝向听音位置,可能会使音色均衡变得太亮。将音箱再向内转一些,使单元的中心轴在听音区前面一点的地方交叉可能是更好的办法。这样或许可以得到理想的音色均衡,同时听音区域的范围可以更宽一点。

响应调整

         在声音反射较强的听音环境中,对音箱的高频输出进行衰减可能会更令人满意。只需简单地将电感和电阻并联,然后串接在单元前面就可以了。


SEAS FA22RCZ H1597-08 西雅士8寸全频喇叭diy制作音箱附图纸
                         响应调整电路


请看两个推荐的电路在一个60升密闭箱上测量到的轴向声压频率响应曲线。

黑线:无电路。
红线:0.82毫亨和6.8欧。
兰线:1.5毫亨和15欧。

并联的电阻控制高频衰减量,电阻越大,衰减量也越大。建议使用至少5瓦的金属膜电阻。请确认电感是用粗的导线绕成,串联电阻较低,最好低于0.5欧。

SEAS FA22RCZ H1597-08 西雅士8寸全频喇叭diy制作音箱附图纸


SEAS FA22RCZ H1597-08 西雅士8寸全频喇叭diy制作音箱附图纸

(责任编辑:admin)
织梦二维码生成器
顶一下
(10)
43.5%
踩一下
(13)
56.5%
------分隔线----------------------------
发表评论
请自觉遵守互联网相关的政策法规,严禁发布色情、暴力、反动的言论。
评价:
表情:
用户名: 验证码:点击我更换图片
栏目列表
推荐内容