为了让银15能早日发声,利用国庆难得的一个月休假时间,复刻了TANNOY 一代名箱 GRF (最早期的三角背负号角箱)。完成后,让身边的朋友一起聆听了一晚,感觉还算成功.故此发贴留念,同时也可以与同好一起相互交流。
先简单介绍一下GRF ,最早期的GRF跟80年代后一直生产了二十多年的GRF memory 完全是两回事,后期GRF 早以改为倒相箱子,在TANNOY 系列产品里,地位一直只算是不上不下,但是早期的背负号角结构的GRF则是几乎是与AUTOGRAPH 平起平坐。生产的年份并不长,从印象中是55年到58年,配的也基本是银监听。说它几乎与AUTOGRAPH 平起平坐可以从两个方面看出:首先从结构上,两者都采用了背负号角的模式,而且宽度几乎一样,不同之处在于AUTOGRAPH 前面喇叭安装凹了进去,还形成一个前号角,而且AUTOGRAPH 几乎高了一半;其次从声音表现来看,根据港台音响杂志评论,两者声音各有千秋,AUTOGRAPH 因为体积更庞大,低频的气势更庞大一些,不过高频则略微暗了点,而GRF虽然相对低频规模感稍微小一些,但全频段更平衡,所以陈英光给它们的评价是一样高。
之所以选GRF 而没选其他箱体,主要基于一下考虑,首先是声音上,能配得上银监听的也就只有AUTOGRAPH ,GRF,YORK 这三款箱体了,YORK 不是号角箱,体积也明显要小很多,最多只算勉强配得上银监听,因此从声音角度考虑,可以先排除它。AUTOGRAPH 与GRF之间的声音差别前面已讲,按照个人喜好,我是无论如何都不会牺牲高频的,而且GRF的低频也仅仅是相对AUTOGRAPH 略显不足而已,但毕竟是一米宽的的号角喇叭,在50平米以下的空间内都足以藐视古今总多喇叭了。
从结构上,YORK 是倒相箱子,结构简单,AUTOGRAPH 和GRF都是背负号角,构造复杂一些。但先排除的依然还是YORK ,元件也很简单,TANNOY 的倒相箱子虽然结构简单,做起来简单,但越是简单的东西则越难做。谁都知道TANNOY 的箱子都部分利用了箱体发声,因此,对于板材谐振方面的考虑远不是我等业余条件所能参悟得透的;还有一个则是吸音棉的使用,这两个方面看似简单,但调节起来困难,自己没这个经验与能力,所以还是免了吧。AUTOGRAPH虽然构造复杂一点,但是背负号角结构的话,虽然TANNOY 也利用了部分板材谐振来调声,但相对依赖性没倒相箱那么大,而且吸音棉相对要简单得多。而AUTOGRAPH 与GRF之间,AUTOGRAPH 相对难度更大一些,所以还是选GRF吧。
下图是原装GRF 的实物图,


决定了要做GRF后,便开始了大量的调研工作。咨询了几位理论和经验都比较丰富的大烧朋友,了解到一下信息:
1,从理论上讲,背负号角箱的板材最好是越硬越好;最理想的方案是两层薄夹板夹一层中密度板;
2,据说英国雨后初晴的设计师认为:做箱子最理想的木板首先是美松板,然后是欧洲的桦木板,最次的是印尼板,而且板最佳厚度是12MM;
3,也是据说,早期TANNOY 英国版的箱体都是用美松(美国的云杉)夹板做的,后来换成了桦木板,到最后干脆换成了中密度板;
4,这个就不是据说了,前几年TANNOY 重新推出的复刻版AUTOGRAPH 的板材确实是换成了密度更高的桦木夹板(箱子每只也重了近20公斤),说是这样是为了迎合现代声音的要求,按照我的理解,用美松板换成桦木板,板材密度和硬度增加了,低频声音的速度和分析力肯定要好一些,但是论韵味,谁都知道早期的好;不同板材的运用,确实对应了不同的声音取向,是否可以这么理解,早期密度低一些的美松板偏向于韵味,而后期密度和硬度更好的板材则可能偏向于更现代更全面的声音(同时韵味肯定要淡一些);
5,据网上一些朋友的经验,似乎也是美松板要明显好于印尼皇冠板;
6,亲自听过用钢琴板(实际也是云杉板,但是筛选条件更苛刻,性能更好而已)做的LOWTHER,的确中频韵味很好,同时从敲击钢琴响板所发出声音来分析,感觉钢琴响板谐振的声音很非常松弛,频带也集中在比较讨好人耳朵的中频段上,不过另一个特点则是敲击后很容易发出大声,也就是说很容易产生谐振,而且谐振的残响比较长。
(以上信息多谢liu2a3,DBH,VERY 等兄弟
上所了解到的信息中,很多是矛盾的,尤其是第一条,号角喇叭要求板材有足够的硬度与TANNOY 采用美松板的传统习惯。因此这点首先得先做出个抉择。根据“存在就是道理,事实胜于雄辩”为判断准则,我还是接受了美松板,放弃硬板理论,毕竟那只是理论上这么讲,既然我向来喜欢TANNOY的声音,没有理由逆其道而为之,所以在板材的选取上先否定掉硬理论。
接着就是美松板和钢琴响板的选择,前面已经说到,两者其实都是云杉板,但是钢琴响板筛选的条件比市面上普通的美松夹板要 高得多,自然风干好几年且不说,为了或者更加均匀的介质,更是要求单位面积内更少的节眼,从这点上看,钢琴响板应该可以看成最高级的美松板,用它代替美松板应该能获得更好的效果。所以这个也可以定下来了
这样看起来,似乎全用钢琴响板做是最完美的方案,但是从实际听钢琴响板做的音箱以及敲击板子所听到的谐振声来看,钢琴响板的谐振似乎过多。想来也应该是这样,钢琴本身就得利用箱体来发声,发声少了还不行呢。而为LOWTHER喇叭所做的箱子,就我个人感,觉,LOWTHER再怎么着也就是8寸的单元,跟大单元比,总觉得低频明显不够,中频的密度也不够,而用钢琴响板做的箱体,因为谐振比较大,正好可以弥补LOWTHER的弱点,这应该是我听到用钢琴响板做的箱体比以往一般木材做的是要明显好听一些的原因吧。
如此说来,钢琴响板谐振比较多,一个是做钢琴做做必须,另一个则是对LOWTHER单元的缺陷弥补,但是对TANNOY 15寸单元呢?这恐怕就得仔细斟酌了。首先TANNOY 不存在低频不足与中频密度不够的缺陷,因此钢琴响板对LOWTHER 8寸的喇叭合适,不见得对TANNOY 15寸 合适,过了,反而容易使声音发闷,低频缺乏清晰度。但根据复刻版AUTOGRAPH的经验,似乎桦木板可以改善这个缺陷。#p#分页标题#e#
既然如此,何不来和折中,关键的发声部位用钢琴响板,比如前面装喇叭的面板和后面露在外面的地方全用钢琴响板,而其他部位(主要是号角内部的过道)则用密度和硬度更好的桦木夹板。恩,应该是这个方案比较合理了。先这么定吧(再此再次感谢DBH兄)
板材的选择虽然有了基本的方案,但因为还有机会亲自听听原装的GRF 所以,这个也只能是个初步的方案,一切还是得现场亲自听过和看够原装箱后在最终确定。
原装箱在一位朋友家里,用麦景图275推,线财则是超时空顶级的喇叭线和信号线,这样的组合应该算比较到位了。
声音表现不多说了,播放人声、古典音乐绝对是无可挑剔,让久久人不忍离去。如果非要鸡蛋里挑骨头的话,一个是对于听惯300B的人来说,MC275的高频略微显得保守了些,不过这应该不是GRF+银15之过,另一点则是由于听音空间还是小了些,所以低频的清晰度跟也略显不够。这点就不好分析到底是喇叭问题还是空间问题了,根据陈英光的说法,GRF的低频跟现代箱或者是美国箱子比,确实要慢一些,但即使如此,如果换成大空间,我想出来的低频清晰度应该可以满足我的要求了(本人不喜欢听爵士和流行音乐)。
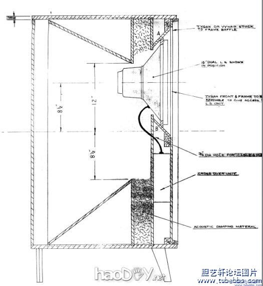
虽然舍不得停下来,但接下来还有最重要的任务:研究原装箱的板材运用,因此只能以后再找机会细细品尝原奘GRF的美声了。首先是是上下面板的材料,出乎我意料之外,并不是美松木,而是一种非常硬,看起来更像原木的板材,敲击所发出的声音也特别硬,谐振频率偏高,残响也很短。
第二点,无论是后背板还是箱体内部号角过道用板(所能看得到的),并不是那种很白很软的云杉板,而是一种颜色有点偏红硬度也比较高的夹板,敲击听一下声音,从谐振频率来看,跟钢琴响板比较接近,稍微偏高一些,但不是钢琴响板那种很松很响的声音,而是一种松中带脆的声音。至于是什么木材我就无从判别了,毕竟不是这方面的专家,能记住木板的声音特点就行。
第三点,除了上下板看起来象实木外,其他板都是12MM的五夹板.
第四点,箱子结构上,上下面板确实是先挖槽,然后其他竖板直插安装的;现代有个老外仿GRF也是这么做的,但不知道原奘是不是这样,现在既然已经证实了,就可以放心的去做。
http://www.users.bigpond.com/kfleming/tannoygrfhorn.htm
这个是老外仿GRF的一个实例,上面除了他制作的图片外,还有设计图纸
分析过原装箱板材后,反而觉得更迷茫,还是先回海口再说了。
回家后别的事情一折腾,一周时间就过去了,如果要从外地买板,路上运输时间不短,回来恐怕也没时间做了。那只能再次折中,先在本地找到比较接近的木板做一对出来,当一把小白鼠,如果好,下一步再优选一下更好的板材料。于是在海口各个卖夹板的地方转了两天,首先发现18MM印尼皇冠板非常硬,密度也高,敲击的谐振比较接近原装箱顶板,以前家里装修的时候曾经买过皇冠板知道它质量过硬,既然声音接近,那这个就可以先定下来了。其他竖的板要求都是12MM厚的5夹板,谐振声音既要松也要脆,本来是想找美松板或者欧松板,可惜海口这个小地方没得卖,而印尼板质量虽然可以,但是只有三层夹板,而且密度太高,谐振声音也完全不一样。倒是有一种国产12MM五夹板听起来声音非常接近原装箱的的板材,也只好定它了。
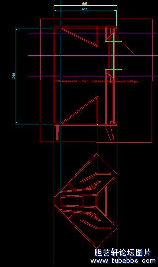
接下就是设计图纸的事了。原来以为这个应该没什么问题,可没想到最后问题最大,拖的时间最长的竟然是图纸的问题。
设计图纸立面.jpg (94.76 KB)

设计图纸平面.jpg (147.1 KB)

设计图纸打印.jpg (121.84 KB)

设计图纸中文.jpg (254.3 KB)

从网络上只能找到以上四张图纸,回来仔细核对后,发现都有问题,头两张平面和立面图纸明显就是扫描出来的,但并没有扫描齐全,不过最主要的是它所标的尺寸根本不齐全,最少一般以上的板子没标注尺寸。第三张是前面提到的老外所做的,上面写着按照300DIP打印出来就等同于实物大小,不过我把它放到CAD里一看,两边根本不对称,所以根据它肯定也做不出箱子来,或者说,最少有喊大误差。第四张是国内书籍上的尺寸,把英寸换算成了毫米,而且有尺寸标注的位置比英文的多,但可惜的是有很多地方明显是错的。
这回麻烦大了
GRF除了顶低板是18MM外,其他的全是12MM ,这个已经完全确定了.
箱子的每一个位置尺寸都必须弄清楚才能开工,最后采取了两个策略:1,能根据已知尺寸推导出来的则先推算出来,不能的,用CAD在原装图纸上进行测量。为此花费了一周多的时间,光是发现那几张图纸的错误前后就浪费了好几天。不过这些工作都不是我自己干的,CAD我不熟,还得求人帮忙。还好到临开工前才把所有的尺寸落实清楚。一周多时间的劳动成果。
CAD图1.jpg (84.24 KB)

CAD图2.jpg (96.28 KB)

CAD图3.jpg (113.28 KB)

CAD图4.jpg (98.88 KB)

CAD图5.jpg (68.38 KB)

图纸好了,剩下就是加工的问题了。加工不外乎五个环节:
1,顶底板的挖槽和切割;
2,其他竖板的裁割;
3,竖板不同角度的洗边;
4,组装
5,贴木皮和上油漆
其中成败的关键在前三个环节,还好之前都已经调查清楚。挖槽比较好办,直接找数控雕刻机加工,数控加工的精度毋庸质疑,可以达到0.1MM的误差,手工永远都不可能达到。裁板前年做扩散板的时候找到一家做橱柜的工厂,那有高精度开料锯,精度在1MM之内,也可以接受了。麻烦的是不同角度的洗边,海口还真不好找,最后找到一家专门做仿古家具的厂那有可调角度的刨床,既然是做仿古家具,工艺不会差到哪里去,干脆连组装和贴木皮也一起在那做得了。
雕刻机挖槽在所有工序中最省心省力。把板放到车床上固定好后,一切全交给电脑控制,等四块板全加工完成后,回去几张好点的砂纸把一些毛刺一蹭掉,看起来简直让人爱不释手。看来科技发达了DIY也省事,要是找木匠手工凿,能达到这个效果的十分之一就不错了。不过也多亏柱子提醒,特意买了把进口的雕刻刀,要不出来的切口恐怕没那么整齐了
雕刻挖槽1.jpg (172.49 KB)

雕刻挖槽2.jpg (144.79 KB)

裁板相对也比较简单一些,因为绝大部分板的长度都是一样的,先横着裁出长度一样的大板,然后竖着再裁出每一个尺寸的板件,至于那些不太规则的,则只能先粗略裁出来,最后组装的时候再让木工弄了。
角度可调的刨边机,在海口找了好几家才找到这里有,还是让工厂里最好的师傅亲自操刀.
刨床2.jpg (156.29 KB)

洗完边的板.jpg (121.33 KB)

组装起来没想到也有很多学问,如果不是师傅经验丰富,让我们自己来估计不一定能装得下,顶底板是数控挖的槽,误差不会超过0.5MM,如果不是木板有一定的弹性,否则,只要任何一块木板误差超过0.5MM都装不进去.不过既然最后都顺利安装完毕,从另一个方面也说明这次加工的精度完全合格了.
安装1.jpg (195.6 KB)

半成品1.jpg (132.48 KB)

柱子.jpg (135.58 KB)

半成品2.jpg (170.59 KB)

安装那几天,虽然是说找师傅加工,不过图纸他们一点都看不不懂,也懒得看,每一步都得让我告诉他怎么做,所以那几天几乎是天天准时到厂里上班。不过这样也好,每一个环节自己可以亲自监控。一些比较细,可做可不做的活,因为是自己的东西,只得自己亲自动手了,比如扳洗完边后都用砂纸把边上的毛刺打磨光滑,安装后,有缝的地方全用木胶粉补上,做到半点不漏气,而声音通道上的一些加强板,则全部把头尾打磨声尖角,减少声音的阻力。
那几天,柱子,老郑,吴老师也是天天到场,
上木胶粉.jpg (101.59 KB)

转眼假期马上就用完了,所以后面的底部围裙,贴木皮,上油漆,都来不及做了,这个样子也可以开声,反正我做这对箱子当炮灰的成分比较大,所以先听听声音再说。箱子基本完工后就直接拉回家,
到家后再加上吃晚饭,已经快一点钟,打电话给老郑,平时比较早睡的他竟然马上就过来了。大家七手八脚的赶紧把喇叭装起再说,安装起来还真得三个人才能装,一不小心把喇叭纸盆捅坏了就一切抓瞎了。
[ 本帖最后由 luss 于 2008-11-13 14:21 编辑 ]
成品1.jpg (134.64 KB)

安装喇叭.jpg (145.68 KB)

“按耐不住兴奋”我们几个人分别来个合影留念
完工留念1.jpg (222.85 KB)

完工留念2.jpg (165.5 KB)

跟随我10年的监听15+ST200也拍个照留念吧,希望是它以后能真的退休了。
监听15留念.jpg (211.43 KB)

最想知道的还是出来的声音到底如何,满怀期待的心情,放下了LP唱针。听了一分钟我知道箱子成功了。除了低频大动态时候低频有点发混外,其他都非常平衡,声音离箱感很好。之前柱子说:新做的箱子,因为胶水没干,声音肯定有点闷,不闷反而不正常。所以低频有点混应该是正常现象,毕竟要等白乳胶干最少得一天以上,现在不过才几个小时。而之前我最担心的两点:声音发闷而不离箱,或者是因为不平衡而发死发干,这些都没出现。
于是连着放了好几张经典的LP 。与原来的SYSTEM 15+ ST200比,在中高频上,银天朗就是银天朗,根本就不是粉磁的SYSTEM 15所能比的,即使再加ST200超高也枉然。而低频的气势与下潜也明显要比SYSTEM 15,甚至是我听过的绝大多数喇叭要好得多。当大提琴群奏的声音起来后,明显比以前能听到更多的信息。
就一个字“爽”
隔了一天,估计胶水应该干得差不多了,于是招呼大家一起过来一起鉴赏.不过为搬功放,有几个下午四点多就过来了。功放还是JADIS 的 JA30和胆唱放 CJ的EV-1。多带EV-1主要目的还是想看看我自己做的那套唱放跟它比到底如何。 
试听会-器材1.jpg (222.26 KB)

JA30.jpg (222.34 KB)

300B.jpg (224.87 KB)

DIY唱放.jpg (106.37 KB)

惯例,有重大活动都得合影留念一番
合影留念.jpg (220.89 KB)

还是说说声音,依然还是用我的300B推。第一天刚做完那次,低频确实有点发混,而且中频似乎还有点雾汽的感觉,这个应该就是胶水没干的缘故。隔了三十多个小时后,首先是中频的雾气没了,低频尽管还有点混,但轻微了很多。后来上JA30,低频明显边扎实很多。这个低频基本可以赶上原来SYSTEM 的控制力了,但是下潜和气势要大得多。因此原来比较担心的低频发混问题,经过JA30的推动,看起来应该是可以过关了。后来,再把箱子底下那几块比重超过一的荔枝木换成避震钉后,低频的控制力和分析力改变更大,更是让我惊喜不已。
避震钉.jpg (61.1 KB)

其实对于这个箱子的吸音棉的使用上,我一开始就觉得对于背负号角箱子,吸音棉的作用远没有倒相箱那么大,后来四友兄说到见过两对原装箱,一对有吸音棉,另一对却没有,就更说明在这个位置上吸音棉的作用并不是关键性的,不过是个微调而已。所以还是按照TANNOY 的传统,用上他家常用的长纤维自然棉。
个人觉得做任何东西首先先有个思路,先找出事情的难点与重点,然后再考虑解决的办法或者是该做哪些试验。这对GRF 的仿造,经过多方面的资料分析后,觉得重点无非在三个方面:图纸的准确性,加工的精度,材料的应用。
图纸的准确性,通过搜集到的多张图的参照对比分析后,这关基本已经过了,而加工精度,因为里面有两个很重要的环节上是用到了数控机床加工,所以这个也不是难点。难的其实就是在材料的选择上,开始选GRF 首先考虑的就是避开吸音材这个大关,另外由于银15自带分频器,所以分频也不用考虑,最大的问题其实是在板材的选择上。
这个方面,原厂资料找不到相关的说明,而对于做音箱选用什么样的材料最好,音响界从来也没有什么铁的定律。有的人不希望箱体发声,因此选择更厚的密度板,甚至是金属等非常硬的材料,但是英国以及早期英美古董箱多少都利用了箱体发声,而且现在很多人更愿意听这种稍带点箱声的古典味道。
如果能确定原厂用的是什么板材,而且能找到的话,我直接用它就是了。我没那么大的野心,能达到原厂9成水平我就很满足了,从不指望超过它。但是目前根本不知道原来用的是什么板,因此,只能通过观察,敲击原装箱以及能选择的板材,然后再做出决定,但是这样做的盲目性还是非常大,所以如果有可能,还是得选几样不同板做不同方案的比较,最后才能得出比较理想的效果。
目前这对实验箱自我感觉有8成原装箱的水平以上,不过心里还是觉得不太够。还有一些其他方案必须得做过试验后才能知道结果,所以有可能的话还会再做一到两对。
(责任编辑:admin) |