房东的网线用的人实在太多了,加上大家都懂的原因,晚上上网龟速啊,简直可以说是聊胜于无。每个月还要收30的网费,深感性价比不高。恰好不知怎么地就偶得一个电信3G上网300小时包年套餐,耶!
立马花100多块钱淘宝down了一个高通6800的山寨3G上网卡。自以为捡了个便宜,品牌的都要200多一个啊!偷笑ing!
结果悲剧就开始了,首先这卡在朋友的Tp-Link 3G路由器里无法识别,估计其他路由器也未必在支持范围内。山寨就是山寨啊,以后扩展只能寄托路由器厂家推新的产品了。
其次这卡信号——窗边还行吧,床边就不行了!而我那房间的窗和床在最远距离。看着信号有4格或5格,一打开网页之类的,立马就3格了,虚啊!打开网页,那感觉就和房东的网线一样了。这悲催的~~ 拆开看下,那天线还真小了。
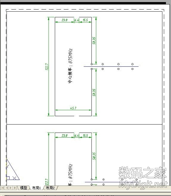
本着“不是5格的信号不是好信号”的指导思想,想想自己在无线论坛也算是个铜丝党,还是自己动手吧。于是到处翻论坛,找到激情老大的电信3G激情双菱天线……不是吧?这尺寸也太大了点吧! 忽然想起自己以前做过无线网卡的Moxgen天线,极薄很小,刚好可以固定在一张IC卡表面上,并且效果相对于普通双菱的确也还好。于是就翻出珍藏的Moxgen计算器,输入激情老大计算双菱用的875MHz频率参数,得出如下一张表:
好了,可以画图了——正好AutoCAD里画直线功能我会用!于是直接就在布局里1:1画了起来。排了一下,A4纸还能画两个!
然后用硬的纸板打印出来,对半裁开。行了,底板就是你了!
开始做天线了,找一截铜丝,用尖嘴钳对着图纸比对着傻瓜式折线。嗯,马马虎虎哈(不满意的地方,锉刀钳子上)!
又用透明胶对线材进行傻瓜式固定——耶,太方便了吧?对比一下原天线,外观上确实威猛不少啊!
固定好了,开始傻瓜式焊接——对整天混本论坛的来说,都显得太easy了吧?接下来又是傻瓜式固定延长线,原本我想着用棉线穿过纸板像缝衣服那样绑定延长线的,透明胶也凑合O(∩_∩)O哈! ![]() 整个天线基本上外观就这个样子了。线材用的是50欧姆的馈线。 ![]() 该对网卡动手了,焊去原天线弹片,然后锉刀修理屏蔽罩便于上锡。看准位置,在外壳上钻小孔,穿线焊接——对于各位动手老鸟,我说得可能有点罗嗦。 ![]() ![]() 最后装上盖子,成品出现! ![]() ![]() 测试一下。哎呀,下行都能达到200多K了,本来撑死100多啊,动不动还会给你无法响应! ![]() 至于天线怎么固定的?直接就透明胶贴在墙上了,理论上是不是平放然后对着基站信号要好些?我怎么调试不出来?反正信号是满格了。 ![]() 按理这个作为定向天线,我应该测试信号,调整角度,应该弄个支架啥的!但好像怎么调方向,都差不多啊,信号漫反射么?好吧,反正好用了,也不深究了。无线网卡的那个还要对准路由器,这个我就不折腾了,主要是自己也不知道基站在哪个方向O(∩_∩)O哈! 说明: 1.基于楼主的懒惰生活习性,此天线和上网卡没有做转接头,嫌麻烦直接焊上去了!反正基本就是固定不动用的; 2.性能最强最快的不是最好的,适合自己的才是最好的; 3.DIY不分难易程度,不分成果大小,能给广大坛友提供参考思路的就是有价值的。 4.望本帖能给大家提供有价值的参考思路。——顺便参赛哈! (责任编辑:admin) |

































