简介Radio Shack的40-1197 BD-管道项目的成功,我想尝试另一种全范围扬声器的项目。为了消除需要一个挡板步补偿/校正电路(BSC) ,我再次选择去与一个双极系统。推动这些微小的X 最大驱动程序产生的低音往往会造成一些损失的圆锥控制,即使在低SPL。这反过来又导致在不愉快扭曲,这是目前整个中档。在此基础上,该项目采用密封外壳中,试图从这些驱动程序,以获得最佳的中档性能。其他额外的好处,密封的外壳包括一个较高的可达到的的SPL和更好的整体扬声器加上一个低音炮的低音响应。planet_10高保真密封FR125为这个项目提供了灵感。 FOSTEX FE127E DRIVER这种密封双极扬声器的项目使用FOSTEX FE127E全音域驱动器(照片01)。对FOSTEX FE127E驱动程序是120厘米(4.7英寸),设有一个纸盆的的香蕉植物纤维和磁屏蔽。框架的驱动程序是冲压钢制成的,所以它会受益于一些阻尼。
密封罩
一个密封的外壳中,可以通过以下来确定微调方块为:Q = 0.707的最佳体积。许多设计师喜欢用黄金比率(0.62:1:1.62)内胆尺寸。一个框,这个比例将有更小的共振峰比它的尺寸是相等的。另一个比有时是0.8:1:1.25。虽然这些比率可能不会导致美观的尺寸,最好是保持内部的尺寸从任何其他内部尺寸的倍数。全密封盒设计,最终滚降12 dB /倍频程(二阶滚降)。 双极SPEAKERS
另一个积极的特性的双极系统是后驱动补偿为挡板衍射工序,并因此没有电子校正电路是必需的。 FOSTEX FE127E密封双极设计图01示出了计算出的频率响应。对于两个FE127E驱动器,最适体积是12L左右。不过,我选择了去23L出于美观的考虑,让我感到失望的密封效果,容易转换成一个T-线。
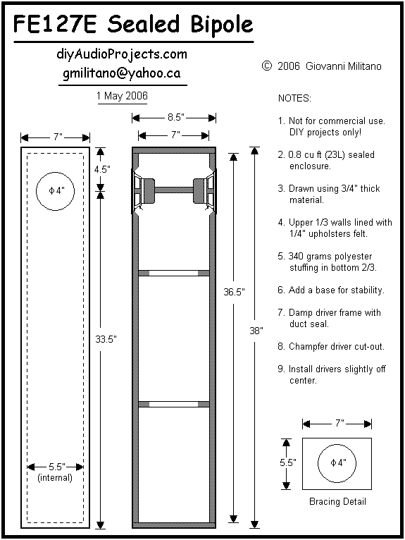
FOSTEX FE127E全音域的驱动程序测得的的蒂勒小参数的页面。 下面是这个项目的外壳设计,绘图01。请参阅有关的详细信息,阻尼/填充,支撑和倒角的驱动程序切口的建筑照片。
建设 外壳构造出的3/4“(19毫米),中密度纤维板。波罗的海桦木胶合板,可能是一个更好的选择,从声学的角度来看,但我认为,中密度纤维板工作会更容易。我怀疑,1/2”中密度纤维板已经足够了。许多的感谢为了庆祝5马赫音频谁做的木工。 02下面的照片显示了背后的驱动程序与路由器建立的倒角。中还示出的照片是在1/4“厚地毯商感到用于阻尼的上部外壳。 (责任编辑:admin) |



,通常被称为的声悬浮外壳,密封的外壳的音箱箱体是最简单的形式。有了一个密封的外壳中,回压波不与前面波干扰,因为它是被困在密封箱。其结果是,密封的盒子系统通常被浪费了,因为从驱动器(即向后的波)的一半的辐射效率最低的机体。尽管降低工作效率,密封的设计是相当普遍的,因为它们促进平滑的频率响应和出色的的锥形控制,转换到准确的声音再现。
在双极系统中,两个驱动器火灾彼此同相,但在相反的方向。双极扬声器声音传播的双方做了出色的工作,他们创造了很多的空间反射以及直接辐射向听众。增加室内反射提供了良好的离轴响应和更好的音效阶段(即双极扬声器有很大的甜蜜点)。因此,扬声器的位置是重要的,但你想保持他们的墙上。此外,bipoles抛出一个巨大的墙的声音,可以使它们听起来非常有活力。不幸的是,所有的反射发生,许多的定时和相位线索被丢失,从而成像作为单极设计也没有那么好。
























