最好的电子音响科技diy制作网站

haoDIY_音响电子电脑科技DIY小制作发明

当前位置: 主页 > 科技DIY > 机器人/模型 >

组合型小玩具→小机器人 完结篇

时间:2017-07-24 21:11来源:数码之家 作者:右走 点击:
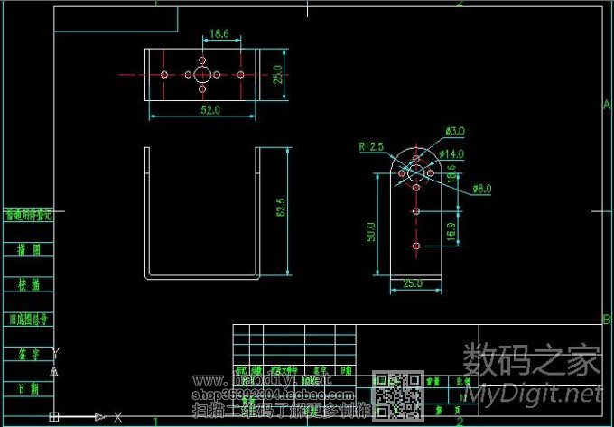
http://player.youku.com/player.php/sid/XMzg0ODkzOTgw/v.swf更新了初步视频 欢迎大家拍砖组合玩具 自个加工的件 有点粗糙1楼2楼 二维图 和3d图 3楼实物图 4楼 视频欢迎大家拍砖|数码之家
http://player.youku.com/player.php/sid/XMzg0ODkzOTgw/v.swf  更新了初步视频 欢迎大家拍砖
组合玩具 自个加工的件 有点粗糙
1楼2楼 二维图 和3d图
3楼实物图
4楼 视频
欢迎大家拍砖
组合型小玩具→小机器人 完结篇 组合型小玩具→小机器人 完结篇
组合型小玩具→小机器人 完结篇 组合型小玩具→小机器人 完结篇
组合型小玩具→小机器人 完结篇 组合型小玩具→小机器人 完结篇
组合型小玩具→小机器人 完结篇 组合型小玩具→小机器人 完结篇
组合型小玩具→小机器人 完结篇
组合型小玩具→小机器人 完结篇
手手  分左右哟

组合型小玩具→小机器人 完结篇
小爪子  不过经费 不够 这个可能 没做呢 只能虚拟的
组合型小玩具→小机器人 完结篇
后面 这个用了 四杆结构   后面一个舵机驱动
组合型小玩具→小机器人 完结篇
长驱直上云霄
组合型小玩具→小机器人 完结篇
组合型小玩具→小机器人 完结篇
侧面也精彩
组合型小玩具→小机器人 完结篇
本来想做成擎天柱的造型  但是 那个难加工  也难组合
组合型小玩具→小机器人 完结篇
加了颜色  有点难看

组合型小玩具→小机器人 完结篇

组合型小玩具→小机器人 完结篇
主要部分 哈哈
组合型小玩具→小机器人 完结篇
小脚脚
组合型小玩具→小机器人 完结篇
一大堆零件
组合型小玩具→小机器人 完结篇
加工好的
组合型小玩具→小机器人 完结篇
开始组装
组合型小玩具→小机器人 完结篇
组合型小玩具→小机器人 完结篇
组合型小玩具→小机器人 完结篇
叉脚
组合型小玩具→小机器人 完结篇
组合型小玩具→小机器人 完结篇
好乱的线
组合型小玩具→小机器人 完结篇
主控制板 用别人的
组合型小玩具→小机器人 完结篇
舵机哟
[ 此帖被右走在2012-05-14 21:16重新编辑 ]
 
  • 组合型小玩具→小机器人 完结篇
 
组合型小玩具→小机器人 完结篇



 
(责任编辑:admin)
织梦二维码生成器
顶一下
(0)
0%
踩一下
(0)
0%
相关文章
------分隔线----------------------------
发表评论
请自觉遵守互联网相关的政策法规,严禁发布色情、暴力、反动的言论。
评价:
表情:
用户名: 验证码:点击我更换图片
栏目列表
推荐内容