先上图
![]() 机架部门是10MM的,装直线轴承部门是15MM的,主轴电机连钻夹是88元(淘宝网“小飞侠”)买的。 给个我的原料表作参考: 原料表: 序号 名称 规格 数目 备注 1 平机螺丝 m4*15 12只 牢靠消差螺母 2 内六角螺丝 m6*20 28只 底座.立柱 3 m5*12 10只 z轴滑块 4 m5*35 4只 x.y轴滑块牢靠 5 m4*15 24只 滑块.轴承座 6 轴承 5mm*5mm*11mm 3只 丝杆 7 直线轴承 LM13UU 内径13.外径23.长度32 12只 光杆轴承 8 铜棒 直径34 45mm 消差螺母上 9 直径28 45mm 消差螺母下 10 尼龙棒 直径20 100mm 联轴器 - 11 PVC板5mm 320*150 1块 x轴背板 12 5mm 50*50 3块 电机座 #p#分页标题#e# 13 丝杆m8*1.25 320 2根 x.y轴 14 150 1根 z轴 15 弹簧 3nn*17直径16高 3只 消差弹簧 16 铝板 10*40 1400mm 底座 17 10*100 360mm 立柱 18 16*40 800mm x.y.z滑块 19 10*200*265 1块 事变台面 20 5*100*160 1块 z轴底板 21 光杆 直径13*300 4根 x.y轴 22 直径13*140 2根 z轴
关于攻丝底孔的尺寸共同题目: ![]()
![]() 附3视图
![]() 设备原料做浅显A轴》 买了一个50mm的手紧卡盘,淘了一个10:1的蜗轮蜗杆变速器,本身加了一个42的电机、找人车了一根轴,在本身的JJ上给轴铣了一个18*3*1.5的键槽。
在本身铝合金的JJ上用1.8mm的玉米铣刀铣,长18mm宽3mm深1.5mm的键槽 ![]() 新雕的小壁虎,用时30分钟,用0.2/30度,平底尖刀。#p#分页标题#e#
![]() 筹备做一个手控板,先做线路板。
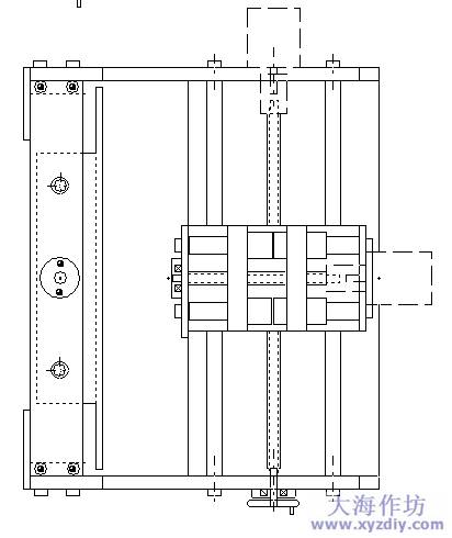
![]() 双螺母消回差的道理与实现要领 为了担保反向传动精度,一样平常都要用双螺母布局预紧,以到达轴向消隙。一样平常消隙方法有以下几种: 双螺母垫片式消隙,此种情势布局简朴靠得住、刚度好,应用最为普及,在双螺母间加垫片的情势可由专业出产厂按照用户要求事先调解好预紧力,行使时装卸很是利便。 1.双螺母螺纹式消隙 操作一个螺墓亓外螺纹,通过圆螺母调解两个螺母的相对轴向位置实现预紧,调解好后用另一个圆螺母锁紧,这种布局调解利便,且可在行使进程中,随时调解,但预紧力巨细不能精确节制。 2.弹簧预紧方法消隙 这种方法与第一种垫片式都是一个道理,应用较量广,有成熟产物。后螺母上有外花键正好和与前螺墓亓内花键相共同,这就起到了防旋转的浸染。为了使消隙螺母有用事变,势必需要两个螺母别离向统一偏向接近或相反偏向背离,C型螺母回收反向力敦促螺母以消除间隙,螺母因为压缩弹簧的浸染力各自向相反偏向背离,从而消除了间隙。压缩弹簧给套环施加了力,而套环将力传输到后螺母,这一浸染力就使后螺母与前螺母疏散,消除了间隙 3.以及其他方法消隙(略)
![]() 我的主轴是淘宝网上买的,联轴器是本身用尼龙棒做的,车一个直径20*30的尼龙段,中间转一个一头与电机相配,另一头与丝杆相配的孔,(我电机是42的直径5mm以是所有选5mm的)在车床上用车刀尖在30mm中间每隔1mm车一道线,返来后用锯安上下阁下四个偏向锯一下,就做成了,根基是锯三分之二深度。 进级Z轴
![]() |
































