|
前言~ 潜水多年,在坛子里瞻仰别人的帖子,看的心痒痒的,感觉自己就像坛底之蛙,深深为那些高手的杰作,创意,所震撼着~自己的水平有限,又第一次发diy的帖,标题起的夸张了点,吸引你进来情有可原,勿怪。最近要结婚了,再过两年也是大叔级了,就当是为青春的冲动留个纪念吧~ 本次DIY五原则 1.量力而为,技术达不到的不做(放弃水冷) 2.量体裁衣,尽量少的改动,结构破坏减少到最低(放弃仿乌鸦) 3. 注重细节,细节就是美~(每颗螺丝用那款,都精心设计) 4.废料也是宝,不轻易丢弃(铝和亚克力都不便宜啊~-~)5.要有自己的的想法,有创新,不一味地模仿~(上翻电源,擎天柱,“自”发光侧板~貌似都是很少看到的哦~) (一楼)整体效果展示。新旧对比~ (二楼)前面板篇-不靠激光靠锉刀,玩了侧透玩前透~(前面板改造,打磨上板,小改下板) (三楼)侧透篇-不透改半透,半透改全透,要露就露的彻底~(亚克力加灯,新旧对比图,机箱结构加强设计,擎天柱) (四楼)电源篇-电源下至已过时~电源上翻更给力~(风道设计,电源小改,密封设计,导风尾翼) (五楼)走线篇-剪不断理还乱~(底板的打孔,走线,遮蔽板) (六楼)美化篇-爱妻爱漂漂,不爱红妆爱黑装(黑化,美化,光污染) (楼层被抢了不少,按顺序看吧,不会烂尾滴) ![]() ![]() ![]() ![]() #p#分页标题#e#![]()
(一楼)整体效果展示。新旧对比~
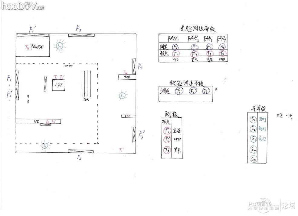
配置清单:(新旧结合,米人勿喷) CPU(新) I7 2600K (oc4.5 够用了,没敢多超,细算算从赛扬300开始用过7个U了,这个是我最满意的U,也是最贵滴~) 主板(新) 华硕 z68 (乞丐版) 内存(新) 海盗船 16G(4*4) (脑残了,4*2就够了,结果插满后,还挡住了散热器风扇,没文化真可怕~) 显卡(旧) 昂达GTX460 768M (阉割版1.5岁 鸡肋啊,不说了,上火~) 硬盘(旧) 希捷250G (4岁高龄,准备13年春节攒钱上个128m SSD 希望能跌倒500-) 电源(旧) 航嘉多核 450W (2岁 性能还行,外观小拉风,就是玩游戏有高频电流声,坑爹~ 架不住当时他最便宜,忍了) 机箱(旧) 百悦BVC-MF423 (4岁高龄 连官网都没有,百度都查不原始图片,不过板材厚度也对的起200-的价格了,就是空间太小了,改造太累了~)\ U,内存 环绕 自发光线效果细节~ ![]() 前面板调速控制 ![]() 侧开效果 ![]() 底部进气扇特写,不是装放了,我把商标撕下重新贴了背部位置,嘻嘻~ ![]() 边框发光特写~后有详细制作过程,最花心思的部分~ ![]() 亮骚蓝螺丝~我的最i爱~ ![]() 改动最少的机箱部分(右侧板),导风尾翼(看似简单,实际工夫没少花)~ ![]() 侧开看内部结构~ ![]() 光芒四射~ ![]() 触控调速器~淘宝败的,小贵~像网友说的没必要除了养眼~呵呵 ![]() ![]() 前面板下板也改成透光~淡淡的不喧宾夺主~ ![]() 这张清楚些~ #p#分页标题#e#U的扇子不发光,小遗憾~ ![]() 光污染由5个船型开关控制~全部可以改关闭。 ![]() 侧面轮廓~ ![]() 电源按键加环灯,但是不是4个都亮,看心情,供电不足?! ![]() 遮蔽板温度计 ![]() 好像图重复了,太平洋一次只能传10张,网速不给力导致,编辑多图排序的时候有点小费劲~希望能改进~ ![]()
(二楼)前面板篇-不靠激光靠锉刀,玩了侧透玩前透~(前面板改造,打磨上板,小改下板)
2.1 前面板调速器 本来都买了九州风神的光驱位 ,谁知九州风神的做工大不如前,而且没有风扇转速显示,貌似3针的风扇有些浪费,和软驱位的调速器,雷同,读卡器对我不实用。就又搞了款最新的控风调速器(4路测温,调速,显速),拉风,做工都很满意~现在好后悔,但是买都买了~哎,我本来都是想省点,结果都买些自己不满意的东西。没用的堆在那里~反而更浪费,mod就是个无底洞,越搞越费钱,越不满意。 2.2 亚克力板用的是原来第一改造的旧亚克力板材 5mm厚度 被我加工成了 6个零件,真的是物尽其用了~ 2.3 软驱位,加九州调速器,3年前搞的,做工不错,非现在的阉割货。 2.4 原来的电源按键式没有灯的,如此好的结构不装个led岂不是浪费了,串联4个蓝色led接12V,有一个led不亮不知道为啥,再焊了 2.5 原来的下面板的孔位是封死的3层三明治结构,把中间的一层切空,换成两块透明的亚克力,就可以做到透光,不透风的效果。 2.6 下面板要吸风,原来的位置太小了,再开两个洞洞辅助进风,本来想加个防尘的网,一直也没找到合适的。郁闷中... 旧侧板亚克力拆下,简单切割比大小,放不进正常,以后慢慢慢慢的磨~ ![]() 开拆~ ![]() 做工一般的九州调速器~最终放弃了~ 发帖第2天被小网友8折包邮秒了,祝他也能搞出满意的作品,呵呵~ ![]() 测试新触摸调速,价格贵了一倍,效果好N倍~ ![]() 调速器边上用1mm密封条密封防漏光~防缝隙~点滴的细节成就完美~ ![]() 2.2 亚克力板用的是原来第一改造的旧亚克力板材 5mm厚度 被我加工成了 6个零件,真的是物尽其用了~ ![]() 在纸上先画好位置,原来准备前面板放温度计,后来摆了触控调速,带温度,就改了方案~ ![]() 圆是由直线构成的~ #p#分页标题#e#5mm太厚了,背面接着切~ ![]() 半圆锉打磨内弧度~ ![]() 电摩开小洞~ ![]() 小平锉,圆孔改方孔~ ![]() 对位,上风扇测试~ ![]() 上机箱前板测试~软驱位,加九州调速器,3年前搞的,做工不错,非现在的阉割货。 ![]() 2.4 原来的电源按键式没有灯的,如此好的结构不装个led岂不是浪费了,串联4个蓝色led接12V,有一个led不亮不知道为啥~ ![]() 焊工不是哥强项~这个其实是2年年前改的,那时哥还很年轻~ ![]() 2.5 原来的下面板的孔位是封死的3层三明治结构,把中间的一层切空,换成两块透明的亚克力,就可以做到透光,不透风的效果。 ![]() 拆开~ ![]() 其实这个面板的图案,哥蛮喜欢,简单不呆板~下面其实垫了张白纸,为的是把所有空位都记录下来,可是并不是所有孔位都能透光,因为,面板下还有前置USB,音频孔,支持柱都要避开,不考虑这些就盲目切板,会适得其反,即使这样小心哥还是切错了2个位置,后来打的补丁,细心的人会发现~ ![]() 先搞两条对位置~ ![]() 按边框打磨,注意避让固定螺丝柱,前面板音频接口~ ![]() 好不容易搞进去,边角有瑕疵~ ![]() 打孔,利用原来的面板柱固定~中间那一小片亚克力是为了弥补右下角那个瑕疵的~ ![]() 这个面板搞了整整一下午,一直搞到天黑~ ![]() 前面板第一次整体测试~ ![]() 2.6 下面板要吸风,原来的位置太小了,再开两个洞洞辅助进风,本来想加个防尘的网,一直也没找到合适的。郁闷中...风扇加减震垫~#p#分页标题#e# ![]() 免螺丝,sm固定~ ![]() 加横向密封条,防止进灰尘,串风~ ![]() 塑料开底进风孔,好轻松~ ![]() 下楼有前面板效果图~ ![]() 前面板的光污染控制开关~控制顶射灯,侧灯,底灯,U发光线,轮廓发光线 ![]() 精确打磨,可以做到无螺丝加紧,任意开合~ ![]() 前面板整体效果~ ![]() 电源 完美4led等全亮效果 (三楼)侧透篇-不透改半透,半透改全透,要露就露的彻底~(亚克力加灯,新旧对比图,机箱结构加强设计,擎天柱)3.1 两年前曾经改过一次侧板,小侧透,但是不咋满意,主要是开洞太小,侧面进风口又容易进灰,受了正压理论的毒害,确定改全侧透。 原来2次改造的侧板~下面那排洞不是进风孔是,原来哥设计的光污染开关~ ![]() 背面的哥上的吸音棉~2年来,吸不吸音哥不知道,不过吸灰尘,和保温的效果还算满意~囧~ ![]() 原来二次改造的小侧透效果,其实也不错,不过没过程图了~当年哥还在7平米的出租屋奋斗,相机都没有,呵呵~说多了,回正题。这个主机的位置不奇怪,这个是卧室,隔壁是客厅,哥玩的是穿墙术~为的是看电影零噪音~我承认有点小变态~ ![]() 3.2学习坛子里高人的做法,先胶纸划线,开孔器做圆倒角,但实际作出的效果一般般~ ![]() 欲开打孔,先钻小定位孔~ ![]() 合金开孔器,工业级?浪费了~还不如薄板开孔器边缘切的齐整~ ![]() 3.3为了把线切直败了角磨机支架,结果根本不实用,高转速下,抖道厉害,100大洋打水漂了,网友们千万不要再上当,买看上去很专业的东西。其实还不如手切的直~ ![]() 业余选手使用角膜机,朋友一眼看穿~善意提醒~貌似方向反了,这样有点危险。 #p#分页标题#e#角磨机真好用,就是有点危险,早知道这么好用搞个调速的了,边缘砂轮打磨~ ![]() 效果跟狗啃的似地~还是不够满意~ ![]() 3.4 网上淘了3mm的亚克力,结果边上的空位留的太少了,容易碎了,再说3mm和5mm的比质感太差了,全侧透强度担忧,就又败了5mm的板,结果寄来的时候算裂了一个4cm的口,心痛死了,大肠都悔青了 ,垃圾韵达~赶工不退货了~本来还想磨下边的以后在说吧,太累了。(不过根据前面板改造的经验,磨边的亚克力,可以使光线在板内反射,效果很好~) ![]() 3.5以前为了改夜光键盘败了3m的1.3mm的冷光线,键盘没改成,线可不能浪费掉。这次也是较劲脑汁想如何把冷光线搞直。穿“回”型孔硬拉 怕怕破坏线; 用透明胶粘在亚克力上也会有小间隙,以后进灰不美观;在亚克力上开槽放线又太难。最后决定用2mm厚的密封条粘在侧板上开槽,亚克力板在放在上面。完美解决~密封防尘,减少侧板碎裂可能,还挡住了不直的边线,是整个mod中的得意之作~ ![]() 3m有点长,剩下的也不会浪费的~谁知发光线,毫毫皆银两~ ![]() 皮带打孔器~ ![]() 帖2mm密封条上去,冷光线是1.3mm~ ![]() 美工刀开切直线槽,这个才叫直线~ ![]() 加紧在打孔,才会打出同心孔,不同心极容易将亚克力孔压裂,好男人不会让自己的亚克力再受一点点伤~ ![]() 加电测试~ ![]() 边角特写~ ![]() 分层,固定特写~请忽略粗糙的边角~哥太累了,下次再一起打磨~ ![]() 3.6 看到网上有人用筷子支撑显卡,有了做个“擎天柱”的想法,貌似很高端的机箱上才有类似的结构哦。一方面可以支撑u的散热器,和显卡,保护主板,一方面也能加强机箱结构(事实上,机箱在开了四个打洞后,强度明显下降了)。 ![]() 铝材易加工~ ![]() 上箱子测位置 ![]() 3.7 全手工打磨,量身定做小托片,加密封条防滑的哦~再也不用担心主板变形了,搞个猫头鹰也撑的住~ #p#分页标题#e#我切,切,切~ ![]() 加个弧度更有美感~ ![]() 坑跌的堆料散热器,只能压到75度~哎~~羡慕基友的冰刃~ ![]() 我的最爱~I72600K ![]() 看上去很美~别和我提温度好吗?吸音棉不吸音,散热器不散热~这个混乱的涩会~ ![]() 不放光的风扇,哥真的不中意哦~包个线吧~ ![]() 加紧才能钻出同心孔~ ![]() ![]() 精度,哥要的就是精度~ ![]() 再也不用担心主板变形了,搞个猫头鹰也撑的住~ ![]() 侧面结构基本完成~ ![]() 完成图 ![]() (四楼)电源篇-电源下至已过时~电源上翻更给力~(风道设计,电源小改,密封设计,导风尾翼) 4.1 电源下置,前置都很常见了,电源上翻,见过没?先上个风道理论图~请忽略没文化的字体~ ![]() 4.2 切开电源换个发光的风扇先~不拉风,哥宁死~ ![]() 开天灵盖~防伪贴后有螺丝出没~ ![]() 新旧风扇对比,现在使用感觉噪音指标有点小失望,依然是机箱中最响的风扇~ ![]() 盖盖子前把温度探头放进去~和体~ ![]() 白天效果~ ![]() 4.3 有个退针器,包线更方便,4根一起包,外观更简洁,还省功夫哦~第一次包线,效果还不错吧,嘻嘻~#p#分页标题#e# ![]() 记性不好 做笔记~ ![]() 效果还算满意~ ![]() 4.4 照哈喽kid画虎~吧顶部 底部 风扇位 的洞洞 都一起开好,最喜欢火花四溅的图了~~ ![]() 孔位~ ![]() 底部洞洞 ![]() 上下打通 ![]() 哥的臂孔武有力~ ![]() 其实角摩真的反了,这样真的很危险 ![]() 收尾用锯条,不会过割过头~ ![]() 请无视哥的梅花指~ ![]() 4.7 电源上翻后机箱上的固定孔位就对不上了,不过有电钻哥怕谁~从新打磨对位置 ![]() 电钻也能当铣刀用?不过相当危险,断了钻头很悲催,更容易伤了自己~ ![]() 全金属防尘网,看着眼熟吧,侧板的2次利用~我爱绿色地球~ ![]() 凌乱的第一作案现场,网友问为啥在这地方搞,首先切割灰尘超级大,这个地方好打理,水一冲就好,其次,这个小房间隔音,再次,机器猫能赐予我灵感~ ![]() 未完~~广告后更精彩,看累了?哥发帖不是更累,若猫未死,请移步下一页~~呵呵~
(五楼)走线篇-剪不断理还乱~(底板的打孔,走线,遮蔽板)
5.1 五年前的杂牌机箱想有背板走线是不可能的,不过心若在,洞就在~电钻伺候 ![]() 双孔联通~打磨边缘 ![]() 5.2 做个小游戏,看看一共开了多少个洞,下图公布答案。 ![]() 恭喜你答对了8个!!牺牲的钻头 穿线效果,孔开在边缘一半就够了,既不影响穿线,又美观~ ![]() 5.3 硬盘位让出来给未来的ssd了,顺便手动打造 纯铝ssd托架 冒牌ssd来对位置~ ![]() 5.4,hdd就要搬家了咯,中国dell的硬盘架挪到光驱位,做工还不错,有减震垫的哦。 ![]() 本来想搞个滑道抽取形式的,后来想想太复杂了,按上去很少拆下,(都理完线才发现,想拆都拆不下了,呜呜~~)果断放弃。 ![]() 软轴电摩給力~ ![]() 小地方开口,电摩給力~ ![]() 硬盘架下开的洞洞是为显卡电源线预留的。 ![]() 右掐掐,不必完全切除,U型结构更稳固~ ![]() 本前面板的进气风扇下,“风”水不错哦,妈妈再也不用担心我的温度了~ ![]() 走线测试~ ![]() 后期“L”型固定~ ![]() 最终效果~ ![]() 凌乱的蛛网~ #p#分页标题#e#
5.5 总觉得这个硬盘光驱架的位置乱乱的,想搞个遮丑板,铝材废料再次登场了~~拉丝的很漂漂呢~
![]() 切,放~ ![]() 光秃秃的太单调,加个温度计试试~,你看到的洞,洞是为显卡电源线,预留的,显卡的2条测温线,也从这种地方传出,我觉得理线就是要让露出来的先最少,看着才够清爽~ ![]() 5.6 锉刀太好用,结果洞洞洞多了,1毫米,用热熔胶封死~防止漏光 ![]() 5.7 本来想是 红蓝白温度计各搞一款的,可是白色没货了,同一室温3个温度计,3个温度,晕死~这个精度也太。。。Made in china了吧? ![]() 5.8 不光是美观那么简单,这个遮蔽板也起到了加强结构的作用~有了他机身的侧向结构加强了许多~ ![]() 线真的很难理~有简单到复杂,由复杂到更复杂~ 看着这一堆的线,才知道为啥DIY一定要个大箱子了不然线都放不下~都把线包好了,连开关不亮,郁闷,想想原来用的是旧鼠标线,鼠标线是漆包线,绝缘,(过焊锡也没用)靠,全部又拆下,从连,为了不出问题,连接点都过焊锡的,这个累哦,盲肠都悔青了 ![]() 我也不相信这个是最后的效果,光驱调速测温线电源线9根,软驱调速线电源线8根,灯光线10根,控制线10根,变压器2个,风扇5只,就这个效果了~ ![]() 还好,绕线效果满意~ ![]() (六楼)美化篇-爱妻爱漂漂,不爱红妆爱黑装(黑化,美化,光污染) 6.1 五金店搞了两罐自喷漆,不同牌子的(亚光8元/普通5元,不过两罐漆真的不够用啊,对于我这种喷漆新手,至少要4罐不然很难形成漆膜,非常容易挂掉,有条件的一定用砂纸,钢刷打磨下,不要像我,喷完后连十二指肠都悔青了,喷漆绝对事技术活,不然效果极差,及其容易掉,绝对不是喷黑那么简单。阴天喷的,机箱好像也没全干透,反正是一堆的问题,太赶进度了 ~ ![]() 第一遍漆效果~ ![]() 第2遍漆效果~ ![]() 第3遍,没漆了。。。。。。晾干了用水冲下漆粒子~ ![]() 洗完澡当然要吹吹了~我也不知道这样做对不对~喷漆高手指点吧~自己瞎搞,效果不好。 #p#分页标题#e#6.2 如何证明爱机是我的呢,唯有在她的背上印上个的ID~打印出哥没人知道的ID(空心文字),看着字体是不是眼熟呢?星际搞过没~~呵呵 ![]() 用一块塑料薄板垫在下表面刻,千万别图省事只用纸片,刻花了就惨了~ ![]() 刀工还不错~ ![]() 再次欣赏下,此图由内涵~o~ ![]() 扑在侧板上~ ![]() 嗤嗤~~~开喷银色漆(以前剩的滴~)有点发灰,其实还剩了白色的,选银灰色是因为银色,没白色那么扎眼~哥低调~ ![]() 6.3 一定用个双面胶粘在背板上喷,不然自喷漆会随着气流进入缝隙,直接导致字体模糊,哥早就想到了,哥就是没找到双面胶哦,不然效果会好很多,很多,好不晕散效果也有气氛艺术气息,自我安慰下吧~顺便说下,貌似这个背板是这次mod改动最少的部分了,呵呵~ ![]() 6.4~那个机箱顶部,底部,风扇位,后面的两个居然一个是8cm,一个是7cm,当时也没拿尺子量,买了2个8cm,就是跟这个机箱较劲,非要安上,本来想把风扇给割掉一块的,可是又觉得可惜,想想sb了,安在外面不就行了,好不容易安在外面了,又发现挡住了侧板~靠~又换螺丝,螺丝也悲剧,网上买了4套,居然按的时候都短0.5cm,小肠都悔青了。靠~就差一点点哦,好好哥家里破烂螺丝多,东拼西凑了10颗长杆子螺丝,颜色又扎眼,忍了~实在折腾不起了~ ![]() 错位置安装的尾风扇~又是一晚上~下部风扇,上2个孔位和上风扇贯穿共用,下连个孔位通过转接片,连接机箱背部~麻烦死了4个孔6套螺丝,谁让我当时没拿尺子量呢,不能怪设计师脑残~ ![]() 6.5 高富帅机箱哥没有,但是哥有独门增高术。用自宫螺丝的塑料塞替换原来的塑料钉,不但原来的垫脚可以用,还可以穿进螺丝,把原来旧碗柜的垫脚利用上,隐形增高1.5cm。不但机箱帅了,底部进风也更顺畅了~增高后再穿上3M防滑鞋,心情很舒畅,自信的走在大街上~~ ![]() 高穷丑诞生了~ ![]() 原来的垫脚不用丢,新腿,洗干净,一起黑化~ ![]() 真的长高了~ ![]() 还没穿3M牌防滑鞋的裸足~性感~ ![]() 6.6 底部的风扇罩是用,原来机箱侧板做的,纯金(属)的哦~防尘棉是女友的黑丝~ 羞~其实本楼还有一样东西是女友专用的,无聊的人找找看吧~ #p#分页标题#e#电烙铁烫下,可以防止脱丝,拧丝~ ![]() ![]() 通透,性感~ 6.8 纯手打磨的3个灯管架子,自己攻的丝,牙签做固定杆,夹的紧紧的,又有一定的热弹性。别看配件小,功夫可不少~灯的位置尽量放到不直射眼睛的位置,利用反射,光纤才柔和~相机太差了,拍不出效果哦~攻丝很过瘾~没败攻丝扳手,角磨夹头也好用(不务正业*-*)~ ![]() 牙签固定法~ ![]() 一个螺丝空位,连接了灯架,风扇,擎天柱,底板防尘网,压力山大~ ![]() 哥喜欢这种精度,精度~ ![]() 光污染开关~像什么呢? ![]() 上板子效果,比2次改造的效果好很多~技术进步了~金属的拨动开关容易生锈,镀镍的太贵,伤不起~这个物美价廉,5毛,能买毛~ ![]() 接发光线可是细致活,上网搜了视频才搞好,那个线比发丝还细~~ ![]() 为了节省空间,能改的都要改~灯光变压器,,貌似~ ![]() 亚克力的支架很和谐~ ![]() 剩下的冷光线,和散热器 和梳子内存 玩了个小穿越 效果还不错哦 ![]() 貌似这么搞的人很少,是不是首创呢?呵呵~ ![]() 绕过U一周~ ![]() 直插内存~密封头封死~ ![]() 效果越看越养眼~ ![]() 亮骚蓝螺丝再次出现~ #p#分页标题#e#凌乱的第二作案现场~ ![]() 后记:白天上班没时间,百十张照片精选了几十张,一边做一边卡片机拍照(啥时候能有个单反呢~)。前前后后搞了2个多月,躲物业,怕邻居投诉。如果只发成品图,那又失去了欣赏DIY的乐趣了。 常常是做在空箱前,想一晚上却定不了一根线的走线方案,最后两周每天搞到2~3点~付出的辛劳只有做过的人懂吧。DIY说白了就是 穷折腾~发帖的目的是为了交流,希望和同好们共同享受DIY的快乐,觉得还说的过去的帮忙顶哦~再次谢谢各位版主,网友的鼓励~ -----经过11号一下午的重新排版(本以为能2个小时搞定),全文完----- 谢谢观赏,如有雷同,绝不可能~ (责任编辑:admin) |






#p#分页标题#e#












#p#分页标题#e#










#p#分页标题#e#
























(三楼)侧透篇-不透改半透,半透改全透,要露就露的彻底~(亚克力加灯,新旧对比图,机箱结构加强设计,擎天柱)






#p#分页标题#e#














#p#分页标题#e#

























































#p#分页标题#e#












#p#分页标题#e#













#p#分页标题#e#















#p#分页标题#e#























