|
下载 (65.6 KB)
2010-3-7 11:45
最后用木纹贴纸封边,大功告成。
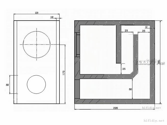
![]() 土炮党哦,只能主观评测: 整个态势感觉犹如8寸以上的单元;中高音通透明亮,低音坚实有力…… 用来替换我原来的电脑音箱,耳目一新。 ![]() 有需要该图纸的,在这儿一并回复了。基本上是按照这张图纸做的。里面的吸音棉未画出 (责任编辑:admin) |
|
下载 (65.6 KB)
2010-3-7 11:45
最后用木纹贴纸封边,大功告成。
![]() 土炮党哦,只能主观评测: 整个态势感觉犹如8寸以上的单元;中高音通透明亮,低音坚实有力…… 用来替换我原来的电脑音箱,耳目一新。 ![]() 有需要该图纸的,在这儿一并回复了。基本上是按照这张图纸做的。里面的吸音棉未画出 (责任编辑:admin) |
先说几句题外话:正式进入矿坛,五届大赛已经开幕。一套音响几年前已经做完,一时没有...
两个宝马6.5寸喇叭一般音箱里没法安装,搞两根内径6寸的PVC排水管,外径正好套进喇叭...
3天时间搞了个东东!能响! 听了2个月了,感觉声音很轻松,虽不像皮边大动态那样呼呼...
几次机会弄到了5只ALTEC的喇叭409-8E,这喇叭最初应该是设计用来做天花吸顶喇叭的,它...
注重搜集 音响 、 音乐 内的人文素材是我一向关注的话题,基本上我可以做到随遇而安、...
音箱介绍: 高音单元:惠威Q1(加拿大版) 中低音单元:惠威D6(老版) 分频器:惠威...
diy制作仿枫叶之声的FS788落地音
更新:2012-12-15
音箱diy制作开孔必备工具用:飞机
更新:2012-12-14
第一次试制作线阵列音柱 经验不
更新:2012-12-15
DIY的豪华号角音箱
更新:2012-09-02