玩大喇叭,我来对小的diy制作天朗12寸同轴喇叭书架音箱(附图纸)
时间:2012-12-14 22:53来源:bbs.hifidiy.net 作者:johnpan 点击:
次
淘到一对拆自天朗CPA12的12寸同轴单元,型号K-3128,铝盆架羊毛盆。 三十年前的老单元了,盆架掉漆难免,但边和纸盆的状态相当完美 下载次数:29 2010-6-22 17:14 下载次数:19 2010-6-22 17:14 下载次数:15 2010-6-22 17:14 查了下资料,使用天朗K-3128(包括
淘到一对拆自天朗CPA12的12寸同轴单元,型号K-3128,铝盆架羊毛盆。
三十年前的老单元了,盆架掉漆难免,但边和纸盆的状态相当完美



查了下资料,使用天朗K-3128(包括3128E)单元的音箱共有6款,分别是Balmoral、Cheviot Mk II、DC 316、SL45、SL65和CPA12( http://www.hilberink.nl/tannoy/jpvanson/speakers.html ),综合考虑决定仿一对SL45

查厂家资料得知,SL45尺寸为580X410X267,用多层板制作,前面板厚25,其他面18,内部有加强隔板。
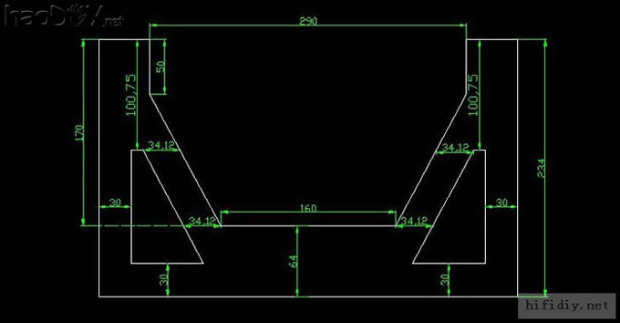
根据资料,绘出箱体图纸




找到CPA12原箱分频器,画出分频电路图纸


在广东定做箱体,严格按原箱参数,用进口夹板,前面板25mm,其他面18mm,榫槽拼接,倒相管内装,贴樱桃木皮
开板

榫槽拼接

贴樱桃木皮,前面板突出3MM,这是最考验贴皮工艺的地方

倒相管内装,比较美观
(责任编辑:admin) |
织梦二维码生成器
------分隔线----------------------------