最好的电子音响科技diy制作网站

haoDIY_音响电子电脑科技DIY小制作发明

当前位置: 主页 > 音响DIY > 音箱DIY > 分频音箱 >

惠威SS6.5R 6.5寸中低音+SS1II高音喇叭套件diy制作书架箱

时间:2012-12-07 21:49来源:bbs.hifidiy.net 作者:罡子 点击:
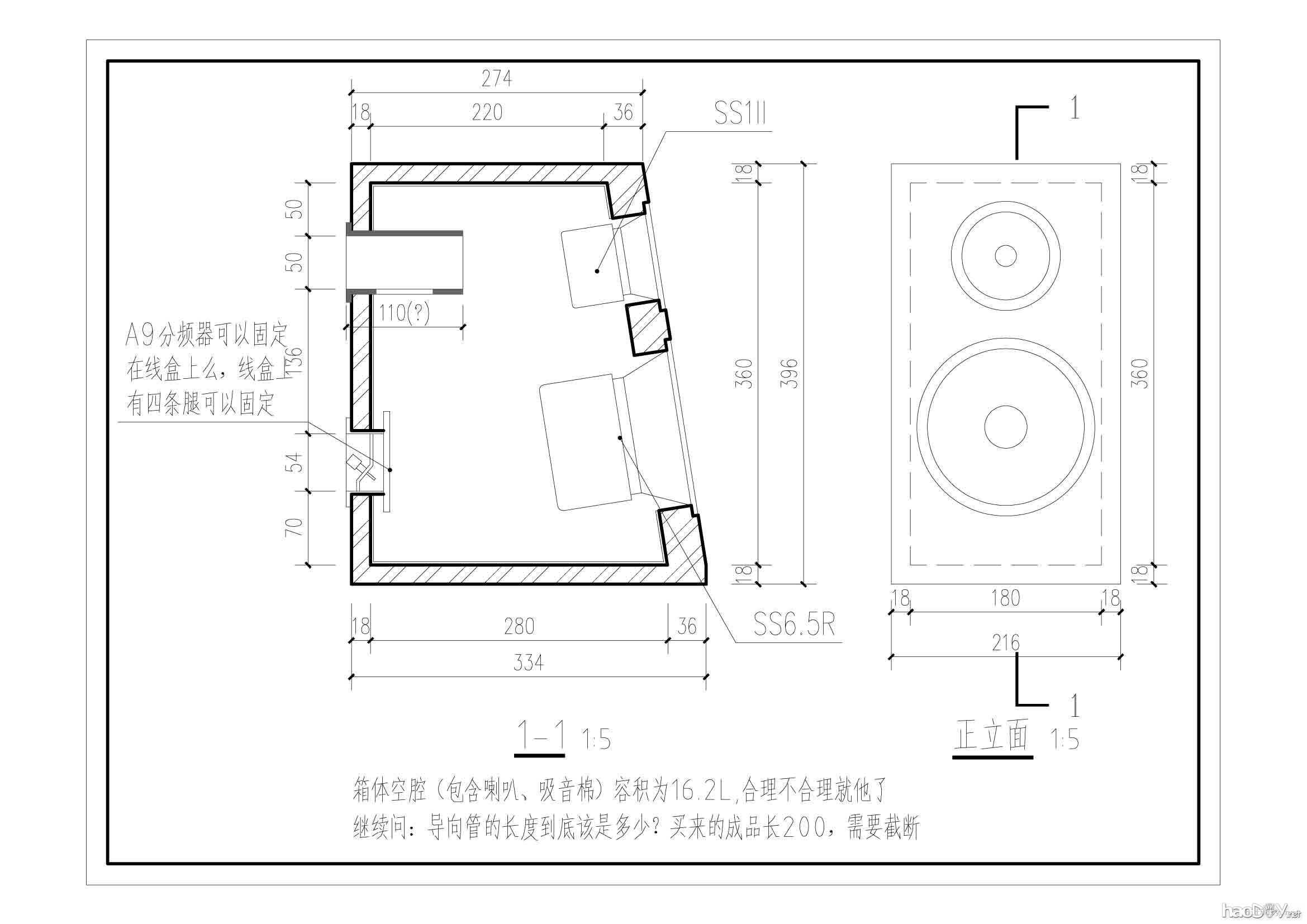
6.23改现场直播了 调整后箱体尺寸 下载 (247.29 KB) 2012-6-23 20:29 上午去买的密度板,18mm的90元一张帮裁成400X1200共六块 下午调整了一下图纸,准备下料,结果手锯实在是太悲剧了,那个累啊,锯了两块就放弃了,然后出去买了个电锯,130,还行不贵。 晚
6.23改现场直播了
调整后箱体尺寸


惠威SS6.5R 6.5寸中低音+SS1II高音喇叭套件diy制作书架箱



上午去买的密度板,18mm的90元一张帮裁成400X1200共六块
下午调整了一下图纸,准备下料,结果手锯实在是太悲剧了,那个累啊,锯了两块就放弃了,然后出去买了个电锯,130,还行不贵。
晚饭前把所有的板材切割完成,手艺不精,切口不是太平,打磨的砂纸买细了,还得再去建材市场(集美家居,离我家也就一袋烟的路程)。
看图吧
我的操作空间选在阳台上了,灰太大,伤不起啊。原来的菜园子跟森林都覆上了厚厚的一层土

惠威SS6.5R 6.5寸中低音+SS1II高音喇叭套件diy制作书架箱


看看我的辣椒,长势还不错哈,谁要种子,我还有好多呢

惠威SS6.5R 6.5寸中低音+SS1II高音喇叭套件diy制作书架箱


特写一下
惠威SS6.5R 6.5寸中低音+SS1II高音喇叭套件diy制作书架箱


我的小树苗,惨不忍睹,看来打扫战场也将是一项艰巨的任务
惠威SS6.5R 6.5寸中低音+SS1II高音喇叭套件diy制作书架箱


下好的料,前面板是双层的18mm已经沾好了
惠威SS6.5R 6.5寸中低音+SS1II高音喇叭套件diy制作书架箱


看看全家福
惠威SS6.5R 6.5寸中低音+SS1II高音喇叭套件diy制作书架箱

今天的最后一个作业,完成了一只箱子的大部分制作工作,就缺前、后面板没安装了,后面的面板我想做成可拆卸式的,是不是不好密封呢?现在已经上好刑具,嘿嘿
边角薄弱部位进行了木方加固
看图
惠威SS6.5R 6.5寸中低音+SS1II高音喇叭套件diy制作书架箱
织梦二维码生成器
顶一下
(35)
66%
踩一下
(18)
34%
------分隔线----------------------------
发表评论
请自觉遵守互联网相关的政策法规,严禁发布色情、暴力、反动的言论。
评价:
表情:
用户名: 验证码:点击我更换图片
栏目列表
推荐内容