最好的电子音响科技diy制作网站

haoDIY_音响电子电脑科技DIY小制作发明

当前位置: 主页 > 音响DIY > 音箱DIY > 分频音箱 >

惠威D6.8喇叭书架箱完成!重新设计分频。附上全部制作图纸资料

时间:2012-11-27 15:57来源:bbs.hifidiy.net 作者:yoyompk 点击:
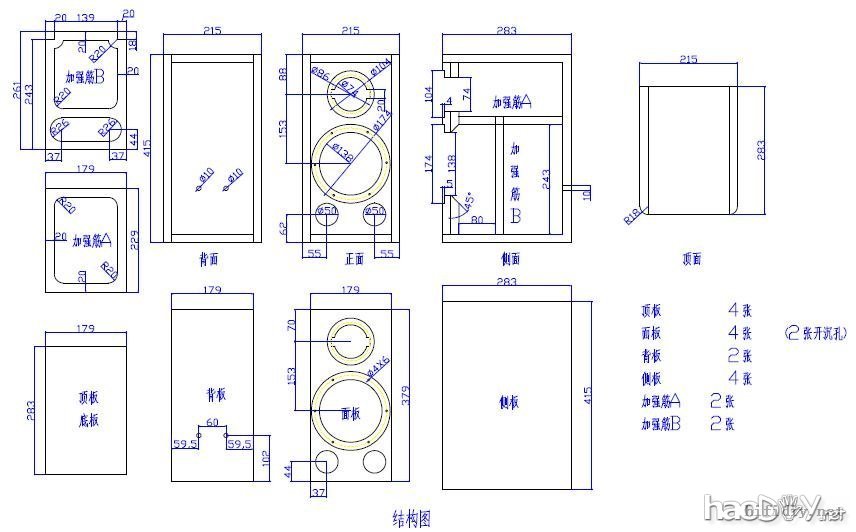
下载 (19.95 KB) 2012-9-26 00:44 下载 (21.32 KB) 2012-9-26 00:44 下载 (105.68 KB) 2012-9-26 00:44 下载 (115.91 KB) 2012-9-26 00:44 下载 (65.54 KB) 2012-9-26 00:44 经过一段漫长的DIY时光,我的处女箱终于完成。从参考D友的方案,到网络寻成品空箱

惠威D6.8喇叭书架箱完成!重新设计分频。附上全部制作图纸资料



惠威D6.8喇叭书架箱完成!重新设计分频。附上全部制作图纸资料

惠威D6.8喇叭书架箱完成!重新设计分频。附上全部制作图纸资料

惠威D6.8喇叭书架箱完成!重新设计分频。附上全部制作图纸资料

惠威D6.8喇叭书架箱完成!重新设计分频。附上全部制作图纸资料 惠威D6.8喇叭书架箱完成!重新设计分频。附上全部制作图纸资料

过一段漫长的DIY时光,我的处女箱终于完成。从参考D友的方案,到网络寻成品空箱不遇到自己画图开板成箱,贴木皮打木蜡,再到上箱测试单元,调整倒相管,最后模拟制作分频。。。。。。。。体会到了DIY的艰辛与乐趣。上一贴求大大们指导分频,得到了不少朋友的宝贵意见,今天完成了新设计分频的制作上箱。具体听感因人而异,本人非烧友,只求能舒舒服服的听听歌,目前感觉良好惠威D6.8喇叭书架箱完成!重新设计分频。附上全部制作图纸资料 。整理一下资料附上图片。制作过程没有拍照。。。。。。
分频里单元的符号选错了

惠威D6.8喇叭书架箱完成!重新设计分频。附上全部制作图纸资料

惠威D6.8喇叭书架箱完成!重新设计分频。附上全部制作图纸资料

惠威D6.8喇叭书架箱完成!重新设计分频。附上全部制作图纸资料

惠威D6.8喇叭书架箱完成!重新设计分频。附上全部制作图纸资料

照片手机拍的,朋友凑合看吧

这对单元已经煲了有一段时间了,边听边学习吧。在大家的探讨中我也开始渐渐有点眉目了。曲线和厂家给出的还是比较接近的。现在就是想重新做一个合适容积的箱子,然后再上箱测曲线设计分频。谐振频率是我比较关注的,毕竟能反映出箱子低频下限哦。我发现D6.8这个单元真的和之前有些朋友说的容积不能大。容积大了,倒相管长了按理说箱体的谐振频率低才是。但是实际测上箱的阻抗曲线发现谐振频率偏高了好多,听感上也是低频低不下去。反而容积减小到10L左右低频被“压榨”出来了

(责任编辑:admin)
织梦二维码生成器
顶一下
(1)
33.3%
踩一下
(2)
66.7%
------分隔线----------------------------
发表评论
请自觉遵守互联网相关的政策法规,严禁发布色情、暴力、反动的言论。
评价:
表情:
用户名: 验证码:点击我更换图片
栏目列表
推荐内容