|
这些都是做自己动手(DIY)的扬声器,内置的扬声器箱的使用花岗岩。

照片1:DIY花岗岩海洋G17REX / P和27 TFFC驱动扬声器
音箱项目摘要
外箱尺寸240×350×280毫米。内箱尺寸200×310×240毫米。箱体材料20毫米厚的黑色花岗岩(NERO Assoluto)。重量35公斤。
外壳体积14.9 L.低音反射式音箱调整到45 Hz。端口长度为160毫米
输入功率为80W。灵敏度87.5分贝。传输带宽40Hz的- 20kHz的。阻抗6欧姆。

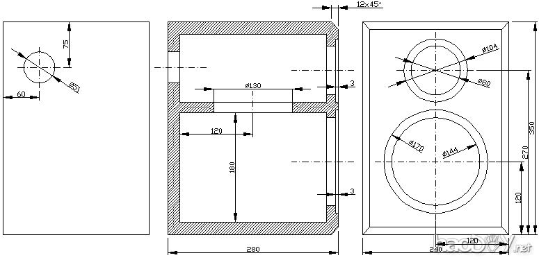
图1:海洋花岗岩扬声器音箱计划
海扬声器驱动器
该扬声器系统的选择是从海洋已超过50年生产的喇叭驱动器的驱动程序。高音单元是海洋27 TFFC织物穹顶。Sonolex轻盈的面料圆顶对空气中湿度的变化具有较高的一致性,并提供出色的稳定性。僵硬的和稳定的后方室允许一个中等偏低的交叉频率(2500kHz)。这使海洋27 TFFC高音单元花岗岩扬声器的正确选择项目。
我们使用的低音单元是海洋G17REX / P。低音单元由玻璃纤维圆锥体,一个子弹型相位塞和橡胶环绕的高损耗。这些是仔细匹配来彼此产生平滑的频率响应。
音箱和交叉设计
音箱箱体和分频网络的设计由M.Janura和K.Sýkory使用LspCAD扬声器设计软件。一个容积15L(尺寸220×350×250毫米)的调谐频率为45Hz的扬声器箱。分频值为2.5kHz,并在相位上被连接的驱动程序。交叉的原理图和建模的频率响应如下所示。

图2:计算音箱的频率响应 - 的海洋G17REX / P低音单元

图3:交叉原理图 - 的海洋G17REX / P TFFC高音低音喇叭和27

图4:计算频率响应 - 的海洋G17REX / P TFFC高音低音喇叭和27
交叉分割网络中使用的组件是从特斯拉。我认为,前捷克斯洛伐克的人能够生产高品质的元件,但你可以使用自己喜欢的类型。是MKT电容(电容),用于在交叉型 - 我们没有使用双极式冷凝器,因为他们有缺点,我不会再指定。电感器是空气的核心。

照片2:交叉海洋G17REX / P TFFC高音低音喇叭单元和27分频网络
花岗岩音箱建设
对于音箱箱体,我们想用一个很坚硬的材料。思考漫长而艰难的,而在我们最喜欢的酒吧喝啤酒,我们决定采用黑色花岗岩 - Nero的Assoluto从意大利进口的。喇叭箱在工厂的合作作者的作品。

照片3:与金刚石锯片切割花岗岩大板
花岗岩是不便宜,制造业也很辛苦,苛刻的。所有零件的两侧被裁成45°,并与天然树脂粘在一起。通过这种方式,将音箱看上去就像是一块花岗岩。

照片4:花岗岩音箱侧

照片5:磨花岗岩音箱墙

照片6:树脂胶花岗岩音箱
扬声器箱的内壁绘有3毫米厚的沥青阻尼。音箱箱体充满人造棉。的调谐端口在后面。WBT接线柱,用于扬声器的连接。

图片7:沥青音箱阻尼
数控机床上的所有开口埋的进行。音箱箱体充满人造棉。的调谐端口在后面。WBT接线柱,用于扬声器的连接。

图片8:花岗岩音箱建设
(责任编辑:admin) |