|
一個垮越整個世紀多的老牌子RCA,是美國昔日電子業的鼻祖,RCA恒定生產電子管(膽)的年期最長,其生產量亦冠絕全球,以膽量講到“夠膽”無出其右,RCA廠另外的重要業務有:揚聲器、收音機、擴音機,當中亦不乏名留青史的經典作品。本文與讀者正分享久違了的單聲道後級RCA 12182A,圖(1) , 圖(2),從外表上看每聲道機頂有四個變壓器,分別是:高壓電源牛,燈絲電源牛、輸出牛、扼流圈choke,真是氣勢如虹的牛陣。
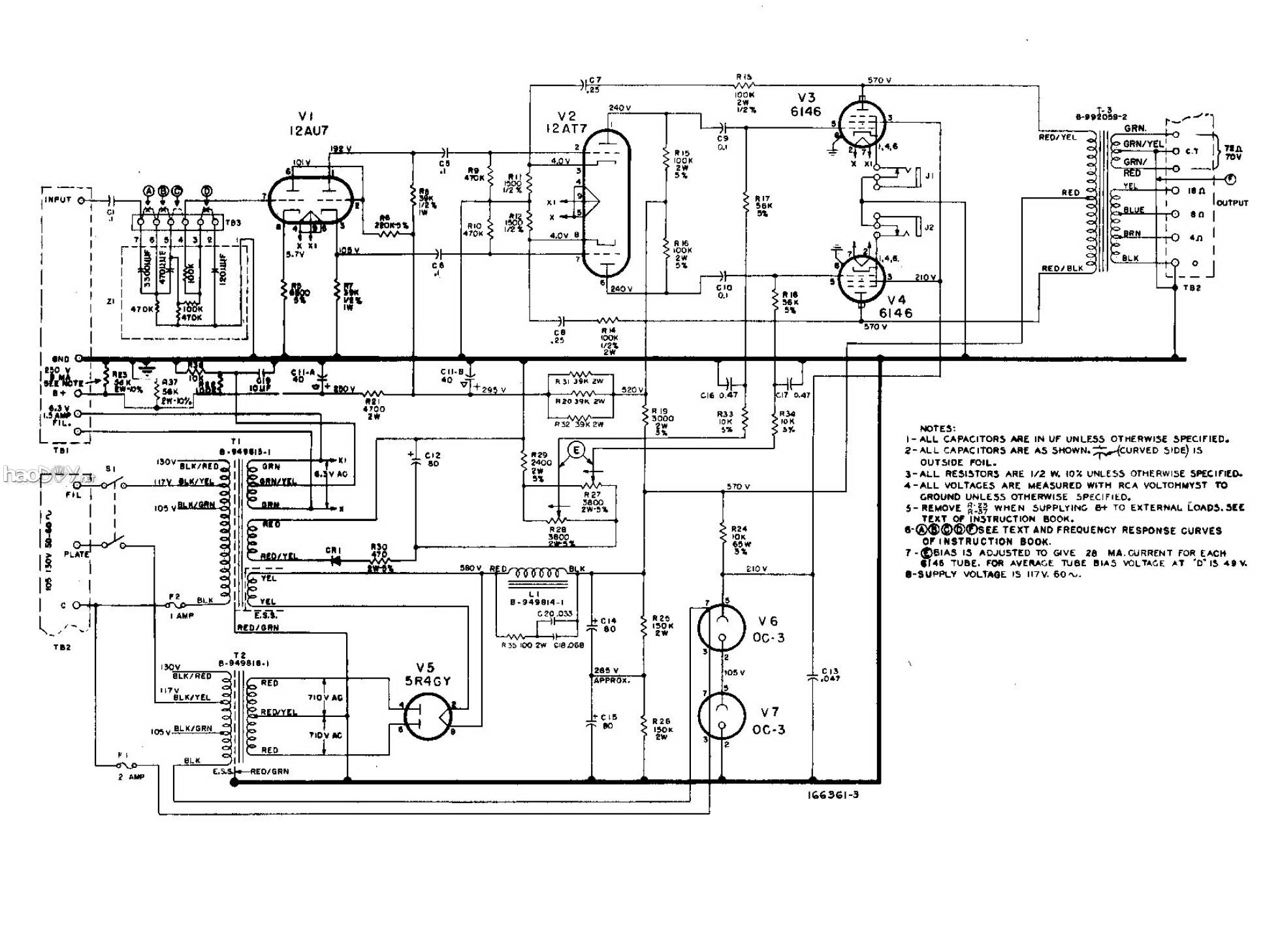
RCA一向都是朝著專業廣播方向來生產音響器材,這當然重視可靠與耐用,例如在MI-12182A的後級特別把一貫常有的一個電源牛分拆成為高壓與燈絲牛獨立個體,目的是減低高壓線圈與燈絲線圈因電壓差而產生“跳火”短路,看線路圖 圖(3) 電源變壓器高壓線圈是710V ×2,單以高壓線圈之起段與末段已有1420V的電壓差距,可看得出廠家在這方面是認真的處理。古董機在不少設計上已被今世代的人們所遺忘或失傳,可能還感到陌生----以至驚訝與嘩然,讀者或可有疑問,看輸出牛的B+端是570V,為何需用得上710V ×2的高壓電源牛?若以一般常見的電源處理手法,交流電710V經整流膽得出的直流電在濾波電容所量得的直流應是710V×1.2倍(矽質二極整流是1.4倍),約是直流850V,這就超出了功率管6146所要求的屏極電壓了

圖 (1 )

圖 (2)

圖 (3)
此機電源處理,交流電經整流管所得出的間斷性直流電先經過扼流圈choke然後才給濾波電容,這處理手法是比較消耗能源,亦大幅度的消耗滲雜在電源裏的雜噪波紋,同時大刀闊斧地把比較不穩定的虛壓捨棄了,因此扼流圈就肩負了宰殺之大任,廠家要付出的成本是更大的扼流圈,更大的高壓電源牛。另一點讓今時的科技人們抓破頭皮的是6146功率管按特性屏極電壓是600v,而這台12182A竟用570V的屏壓,就讓某些人質疑其耐用與可靠程度;當我們反觀過來看它已經歷半個世紀有多的歲月仍屹立健全,就可知它是經得起考驗的哦;我們可看深一層,功率管的簾柵極有兩只氣體穩壓管0C3串聯使用,得出的簾柵極電壓210V 圖(4)

圖 (4)
。功率管的耐用程度是取決於簾柵極供電壓安全範圍與穩定,至於屏電壓只是其次,這就解釋了設計上的安全理據。有?可惜的是,遭到現代人所摒棄的技術竟是好聲的意念,近年代的擴音機已經是新人類新作風;或許是因能源效益問題,就不得而知了。
功率管6146是古董膽之中十分便宜又選擇繁多的 圖(5)

圖 (5).
,耐用程度比起EL34、6L6、KT66……等為高,在每只6146處於28ma工作,家庭使用時可有八年十年久,每聲道RCA MI-12182A長期連續輸出功率是35W,維持1小時輸出功率是70W, 峰值輸出可達94W。
動手術:
(一) 原有的交連電容AEROVOX塑膠殼聲音稍為平淡,可轉換SPRAGUE Black Beauty,音頻域闊了,音樂感與從容度有明顯提升,圖(6)

(责任编辑:admin) |