最好的电子音响科技diy制作网站

haoDIY_音响电子电脑科技DIY小制作发明

当前位置: 主页 > 音响DIY > 音箱DIY > 分频音箱 >

我的惠威喇叭音箱diy制作之路,慢慢磨,附分频箱体图纸

时间:2012-12-22 10:52来源:bbs.hifidiy.net 作者:gesaerking 点击:
前些天把膜贴了,脚垫加上了,没时间上图,这几天在搞测量,可是不知道接线错误还是什么原因,测不出来,晕啊,测量z曲线的时候不接喇叭就是不出现16ohm的线, 下载 (134.97 KB) 2010-8-18 09:26 下载 (146.52 KB)
本人是菜鸟,在同事的带动下自己也准备低烧一下,为新房子搞个家庭影院系统,房子明年才装修,不过已经按奈不住了先搞起来。单元都买了好久了,到现在为止还没有开始制作箱体,初步想等到梅雨季节过后开工,先借此机会介绍一下我的功放和其他的东西。因为是无米之人,所以打算理性低烧。先完成家庭5.1音响系统,以后看情况搞个杜希2.1。哈哈
  感谢铁头兄弟的热情帮助,感谢同事的支持和帮助,哈哈。cctv?我就不感谢!,哈哈
  功放是yamaha的HTR 5240 AV功放系统,
  主音箱打算自己做箱体,板子打算用25mm厚的密度板,箱体图纸用PS8/B,稍做修改(尺寸单边+20mm),这样里面的容积基本上能达到35L,留点富余尺寸好做调整。单元用惠威的S8R 和SS1II,分频器打算先用杰士的RB35,效果不好的话再做阻抗匹配,
  环绕和中置都已经装好了,买的空箱子,单元是雅马哈的4寸,高音是安桥的2.5寸好像是,
开个帖子上些图,本人很菜,欢迎拍砖指导。

惠威高音,低音单元图,店里面买的,应该是真的,呵呵。

100_3383.JPG

100_3384.JPG

100_3386.JPG

100_3388.JPG

100_3391.JPG


100_3393.JPG

100_3399.JPG

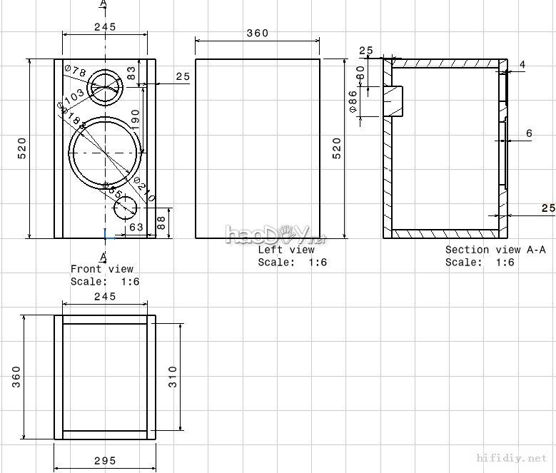
再来个箱子图纸:

2010-06-25_113315.jpg

还有3维哦:

2010-06-25_113546.jpg

这页上准备改造的分频器和原理图,电感没测,(不知道怎么测!)
2010-06-25_114154.jpg

原理图(同事手造,
201006251018_00010.jpg

今天刚刚入了一把飞机开孔,和一把木锯,下次要买胶水,还有911防水涂料, 吸音棉,还有pvc膜,网罩黑丝。

箱子图纸和分频
2010-07-09_222107.jpg


今天终于把板子抗回来了,本来想马上装箱子的,发现螺丝买短了,郁闷,只能明天去买了
100_3422.JPG

100_3425.JPG

100_3428.JPG

这个是把板子搭起来看看效果,缝隙,

100_3429.JPG

100_3430.JPG


汇报一下今天的进程,上午出去买了40mm的螺丝和砂纸,带女儿,中午吃完饭后开工,吧上下的板子高出部分抹掉大概。5mm然后合起来基本严丝合缝,于是开始开孔,对好位置沉孔一次到位,开完了之后用棉签的竹子杆插进去,暂时定位,我是先开1号箱子的左面板子的孔,但上下两块板子位置比较难对准,没开,左面板子孔开好后把竹签拿掉,把前后上下的板子开孔,方法一样,孔开好之后就开始胶合,用牙刷刷好胶水,螺丝蘸胶水打入,四个板子弄好之后上面刷胶,上左面的板子,都弄好之后地上铺报纸,把箱子反过来,开始开孔右面的板子,安装好完事,看有没有刷到胶水的地方补好,上重物压。搞定,但是有个隐患就是前面板没有画开孔部分,担心开孔的时候碰到螺丝,不过可能不会,呵呵。第二个还是要画好以防万一啊。累死了,一个人搞,中间没人拍照,完事拍的。
先插入工具:

100_3436.JPG

100_3437.JPG
然后是被压在山下的悟空

100_3433.JPG

100_3434.JPG

100_3435.JPG

今天搞了个sander,刚磨完,上图:

100_3455.JPG

100_3447.JPG

100_3448.JPG

100_3454.JPG

昨天晚上又奋战了3个半小时,终于用飞机开了4个沉孔,ps,飞机开孔真的不好用,还好本人臂力可以,能拿的稳,再就是用的无绳电钻,速度好控制,但有个问题,扭矩不够大,基本上开到18mm左右就前进不了,只能上手了,而且飞机上面的螺丝还要经常松动,上个成品图吧,有空还要再修修平,好再孔没开废。
技巧,一定要先把中间的中心孔打好,可以小一点,再就是要从外圈向内一点一点调节刀头,进给量不要太大,如果有条件最好再开通孔的时候转几圈用吸尘器吸一下,要不然可能会卡死。

100_3469.JPG

100_3471.JPG

100_3472.JPG

100_3473.JPG

上我昨天的作业,开了四个小孔,把沉孔雕刻了一下并打磨,周末可以装箱子测试了,哈哈

100_3482.JPG

100_3483.JPG

100_3485.JPG

100_3484.JPG

今天交昨天的作业,箱子都装好了,但是还没放吸音棉进去,因为套件还没去拿,先听了,结果发现出了个大问题,不过不打算动了,想知道问题的可以看图找茬。

100_3486.jpg

100_3492.jpg

前些天把膜贴了,脚垫加上了,没时间上图,这几天在搞测量,可是不知道接线错误还是什么原因,测不出来,晕啊,测量z曲线的时候不接喇叭就是不出现16ohm的线,
100_3577.JPG

100_3578.JPG

100_3590.JPG

更新两张图片

100_3595.JPG

100_3593.JPG (责任编辑:admin)
织梦二维码生成器
顶一下
(23)
34.3%
踩一下
(44)
65.7%
------分隔线----------------------------
发表评论
请自觉遵守互联网相关的政策法规,严禁发布色情、暴力、反动的言论。
评价:
表情:
用户名: 验证码:点击我更换图片
栏目列表
推荐内容