|
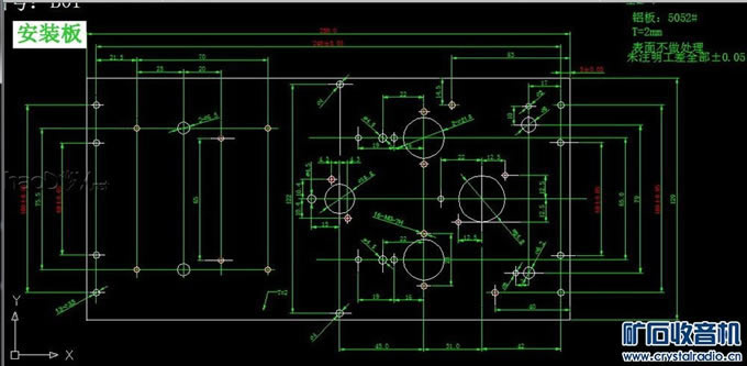
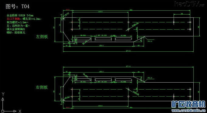
首先说明几点: 本机源自于2013年12月出版的《无线电与电视》第四辑中的一篇文章【一款独具创新的电子管耳放 – 兼谈音质与听感】,在这篇文章中,对电路进行了理论探讨,但未给出实际的制作。 图 00 ![]() 原文较长,里面有关于电路的详细的介绍,本帖侧重于制作。若对原文有兴趣,可在跟帖中留下邮箱,我会发该篇电子文档给大家。 下面摘录原文部分章段: 电子管机以其独具魅力的音色和浓郁的复古情调,在电子技术和现在不可同日而语的年代创下辉煌声誉,现在仍以最后的贵族之身份顽强的在音响领域占有一席之地。 但由于电子管相关理论和技术已经非常成熟,为了达到进一步提升电子管机的音质、改善音色的目的,很多制造商很严谨的按照经典的电路、精湛的工艺、使用各种“补品”元件,希翼能获得理想的效果,确实也出现了一批广受欢迎的现代名机。 正如感性的东西不能完全用理性去分析解决一样,音响中的“听感和音色”,直至今天,仍不能以量化的方式进行描述,或许这正是电子管音响的魅力所在。但笔者认为,一些感性的因素从理论上说最终是可以量化但现在还不被我们所掌握,电子管音频放大器或许就是其中之一。 基于同样的道理,笔者认同“补品”元件对音色的改变,但同时认为电路结构对音质的影响更大。 ----------------------------------------------------------------------------------------------------------------------------------------------------------------------------------------- 本机历经数年改进调试,电路已基本成熟,这是上一版的机子。 图 ![]() 本人也属业余爱好,时值改版制作,主要是外壳部分的改变。恰逢矿坛征集参赛,所以本贴为整机制作首发。愿与大家分享,但谢绝任何以盈利为目的之仿制。 本机以创新的电路结构和设计思路,试图有所突破,主要有以下两点: 本电路是一种改进型的SRPP电路,关键之处就是通过电路的改变实现了小环路浅负反馈。而且符合一条“秘诀”即“将失真控制在最终输出之前”。 其次,电路设计和元件取值采用了“2+1阶带通滤波”的思路,所以本电路的元件取值不宜随意改变。 本电路作为前级,也有很好的效果。 电路图 ![]() 本机外壳为铝合金,CNC加工,表面阳极氧化、硬化。 下面为部分CAD图 总图 ![]() 安装板 ![]() 侧板 ![]() 面板 ![]() 前端板 ![]() 后端板 ![]() 变压器罩 ![]() 这是加工的零件 零件图 ![]() 组装图 ![]() 组装图 ![]() ![]() ![]() 下面是安装过程; 安装工艺特点;采用母线式安装,先用1平方镀银线作为母线。 ![]() 这是一种不用搭棚架的搭棚焊,几乎不用多余的连接线。各元件脚先弯扣搭接。 ![]() 本机的安装布局方式较好的解决了杂散噪音,基本实现了“黑背景”。 ![]() 底面图 ![]() 正面 ![]() 成品图 ![]() 成品后视 ![]() 成品前视 ![]() 元件的选取: 元件选取的一般性原则是;选好的,不是选贵的。 本机所用的电子管;前级为国产12AX7-T,该管性能及一致性不错,装机效果也较好。次选是7025,价格实惠。普通12AX7则需要筛选。 (责任编辑:admin) |















































