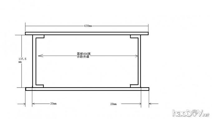
先搞的电源板,搞了一部分之后,发现悲剧了。![]() 上一些图片,以免有人拍砖“无图无真相” 背面该加粗的地方就加粗,有几年没摸烙铁了,焊点看着有点不舒服。 ![]() 背面的焊点和加粗 ![]() 606的机箱,应该是3个大部分,其中有一部分是整体浇铸而成的。 个人不欣赏606原机机箱的外观,于是打算自己另想办法。初步打算用2块铝板(430*350*6)上下夹住散热器,后板用3毫米铝板,侧板及面板用实木,面板加表头。 由于有430的宽,散热比较宽敞。机箱中间用2块3毫米铝板把电源部分与放大部分电磁屏蔽开来,一切设想目前按部就班正常进行中。 顺手画的,还好某人能看懂。 持续更新,昨天的工作结果: ![]() 电源部分,挣扎良久,最后还是妥协了。 ![]() 不过电源板的切割结果,一眼就能看出楼猪工具原始简陋的文科生本色。像狗啃缺的。。。。。。
(责任编辑:admin) |










(责任编辑:admin)





















